1538 Forestry Farm Road Langton, Ontario N0E 1G0
$519,900
Discover country charm and everyday convenience with this cozy 3 comfortable bedrooms , 1 bath ,home sitting on just under half an acre, deep lot. Whether you're a first time home buyer, downsizing, or looking for a peaceful retreat, this property checks all the boxes. Featuring a 20' x 24' Detached Shop heated with a wood furnace , ideal for hobbyists, mechanics , woodworkers, or anyone who needs extra workspace or storage. This property offers room to breathe , space to grow, and the perfect blend of country living. A rare find at this price point. (id:50886)
Property Details
| MLS® Number | 40790235 |
| Property Type | Single Family |
| Communication Type | Internet Access |
| Features | Conservation/green Belt, Crushed Stone Driveway, Country Residential |
| Parking Space Total | 6 |
| Structure | Workshop, Porch |
Building
| Bathroom Total | 1 |
| Bedrooms Above Ground | 3 |
| Bedrooms Total | 3 |
| Appliances | Dishwasher, Dryer, Refrigerator, Stove, Washer, Garage Door Opener |
| Architectural Style | Bungalow |
| Basement Development | Unfinished |
| Basement Type | Partial (unfinished) |
| Construction Style Attachment | Detached |
| Cooling Type | Central Air Conditioning |
| Exterior Finish | Vinyl Siding |
| Fixture | Ceiling Fans |
| Heating Fuel | Natural Gas |
| Stories Total | 1 |
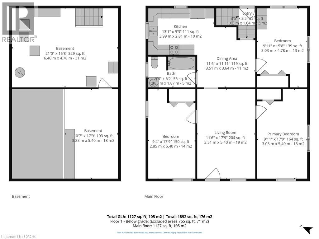
| Size Interior | 1,127 Ft2 |
| Type | House |
| Utility Water | Sand Point |
Parking
| Detached Garage |
Land
| Acreage | No |
| Sewer | Septic System |
| Size Depth | 330 Ft |
| Size Frontage | 66 Ft |
| Size Irregular | 0.47 |
| Size Total | 0.47 Ac|under 1/2 Acre |
| Size Total Text | 0.47 Ac|under 1/2 Acre |
| Zoning Description | A |
Rooms
| Level | Type | Length | Width | Dimensions |
|---|---|---|---|---|
| Main Level | Foyer | 3'5'' x 3'5'' | ||
| Main Level | Primary Bedroom | 9'11'' x 17'9'' | ||
| Main Level | Dinette | 11'6'' x 11'11'' | ||
| Main Level | 4pc Bathroom | 9'4'' x 6'2'' | ||
| Main Level | Kitchen | 13'1'' x 9'3'' | ||
| Main Level | Living Room | 11'6'' x 17'9'' | ||
| Main Level | Bedroom | 9'4'' x 17'9'' | ||
| Main Level | Bedroom | 9'11'' x 15'8'' |
Utilities
| Electricity | Available |
| Natural Gas | Available |
https://www.realtor.ca/real-estate/29134454/1538-forestry-farm-road-langton
Contact Us
Contact us for more information
Carrie Stengel
Salesperson
www.facebook.com/superrealtorlady
ca.linkedin.com/in/carrie-stengel-6b4252169
1019 Bay Street
Port Rowan, Ontario N0E 1M0
(519) 586-8816



























































