455 Springbrook Avenue Hamilton, Ontario L9G 3K9
$2,996,000
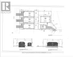
Prime Ancestor Location!!!! This property consists of Total Four residential building lots. Great opportunity for builders, investors and individuals wishing to own a custom build house, design build to their preferences. Applied for severances waiting for approval and the old bungalow on the property shall be demolished at the sellers expense before the closing date. Please note for sale all 4 lots together or even separately to individual buyers. Close to University, Sports Centre and Shopping Centre and other amenities. A) Three 40x120 each 4120 SF + 1900 SF detached house with basement apartment. Springbrook Ave frontage with serviced lots and development fees will be extra on buyer cost. B) One 85x120 for 6210 SF + 1600 SF detached house with free standing garage with living space (above garage apartment). Fair street frontage with service lot and development fees will be extra on buyer cost. ***EXTRAS***VTB available to qualified buyers, present all offers (id:50886)
Property Details
| MLS® Number | X10416459 |
| Property Type | Vacant Land |
| Community Name | Ancaster |
Building
| Cooling Type | None |
| Heating Fuel | Natural Gas |
| Heating Type | Forced Air |
| Size Interior | 23,519 Ft2 |
| Utility Water | Municipal Water |
Land
| Acreage | No |
| Size Depth | 234 Ft ,6 In |
| Size Frontage | 149 Ft ,1 In |
| Size Irregular | 149.12 X 234.55 Ft ; 0.789 Acre With Two Frontages |
| Size Total Text | 149.12 X 234.55 Ft ; 0.789 Acre With Two Frontages |
| Zoning Description | Residential Multiple Lots |
https://www.realtor.ca/real-estate/27636118/455-springbrook-avenue-hamilton-ancaster-ancaster
Contact Us
Contact us for more information
Alfred Richard Serra
Salesperson
10045 Hurontario St #1
Brampton, Ontario L6Z 0E6
(905) 793-5000
(905) 793-5020







