10 White Oaks Road Barrie, Ontario L4N 4C1
$3,350,000
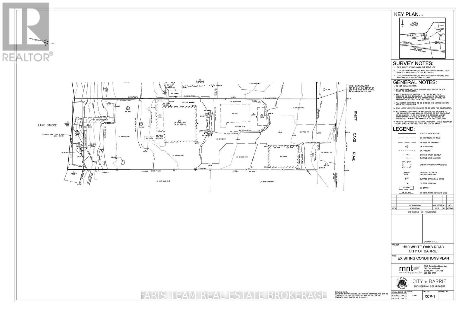
Top 5 Reasons You Will Love This Home: 1) Welcome to an exceptional waterfront retreat, boasting over 91' of pristine sandy shoreline and a steel retaining wall, where sunsets paint the sky and the gentle rhythm of waves accompany the background, enjoyed from the comfort of your window or private outdoor haven, delivering a rare sense of seclusion by the water 2) Ideally located just moments from downtown, this property strikes the perfect balance between peaceful lakeside living and urban convenience, with restaurants, shops, public transit within walking distance, or take a stroll along the scenic trails around Kempenfelt Bay just seconds from the end of the driveway 3) On the upper level, you'll find an expansive primary suite delivering beautiful views of Lake Simcoe, a luxurious 5-piece ensuite, a massive walk-in closet, which can be easily converted to an office or nursery, and your very own private entrance to the upper level three-season room, making this the perfect place to unwind and recharge 4) With more than 3,200 square feet of living space and an extra 385 square feet offered by two three-season rooms, this home easily accommodates a growing family, featuring a spacious deck, and a concrete 24'x40' inground pool ready for summer memories and year-round relaxation, alongside an eight-car driveway with two additional spots at the top of the property 5) Set on an expansive, rarely found 309'+ deep lot, this property comes with a fully approved and in-hand boathouse permit, ready to transfer seamlessly to the new owner, making it remarkably easy to begin construction and bring your waterfront vision to life, renovation drawings are also included, offering even more possibilities to customize or expand. 3,222 above grade sq.ft. (id:50886)
Property Details
| MLS® Number | S12378091 |
| Property Type | Single Family |
| Community Name | South Shore |
| Amenities Near By | Beach, Marina, Park, Public Transit |
| Easement | Unknown |
| Equipment Type | Water Heater |
| Parking Space Total | 11 |
| Pool Type | Inground Pool |
| Rental Equipment Type | Water Heater |
| Structure | Shed, Breakwater, Dock |
| View Type | Direct Water View |
| Water Front Type | Waterfront On Lake |
Building
| Bathroom Total | 4 |
| Bedrooms Above Ground | 5 |
| Bedrooms Total | 5 |
| Age | 51 To 99 Years |
| Amenities | Fireplace(s) |
| Appliances | Dishwasher, Dryer, Stove, Washer, Refrigerator |
| Basement Type | Crawl Space |
| Construction Style Attachment | Detached |
| Cooling Type | Central Air Conditioning |
| Exterior Finish | Aluminum Siding, Brick |
| Fireplace Present | Yes |
| Fireplace Total | 1 |
| Flooring Type | Ceramic, Hardwood |
| Foundation Type | Block |
| Half Bath Total | 1 |
| Heating Fuel | Natural Gas |
| Heating Type | Forced Air |
| Stories Total | 2 |
| Size Interior | 3,000 - 3,500 Ft2 |
| Type | House |
| Utility Water | Municipal Water |
Parking
| Detached Garage | |
| Garage |
Land
| Access Type | Year-round Access, Private Docking |
| Acreage | No |
| Land Amenities | Beach, Marina, Park, Public Transit |
| Sewer | Sanitary Sewer |
| Size Depth | 309 Ft ,8 In |
| Size Frontage | 91 Ft |
| Size Irregular | 91 X 309.7 Ft |
| Size Total Text | 91 X 309.7 Ft|1/2 - 1.99 Acres |
| Zoning Description | R2 |
Rooms
| Level | Type | Length | Width | Dimensions |
|---|---|---|---|---|
| Second Level | Bedroom | 3.72 m | 3.45 m | 3.72 m x 3.45 m |
| Second Level | Other | 8.34 m | 2.98 m | 8.34 m x 2.98 m |
| Second Level | Primary Bedroom | 8.69 m | 5.21 m | 8.69 m x 5.21 m |
| Second Level | Bedroom | 6.17 m | 3.58 m | 6.17 m x 3.58 m |
| Second Level | Bedroom | 4.51 m | 3.34 m | 4.51 m x 3.34 m |
| Main Level | Kitchen | 8.48 m | 4.43 m | 8.48 m x 4.43 m |
| Main Level | Living Room | 7.7 m | 4.6 m | 7.7 m x 4.6 m |
| Main Level | Family Room | 4.81 m | 3.93 m | 4.81 m x 3.93 m |
| Main Level | Other | 3.65 m | 2.99 m | 3.65 m x 2.99 m |
| Main Level | Bedroom | 3.98 m | 3.45 m | 3.98 m x 3.45 m |
| Main Level | Laundry Room | 6.07 m | 3.48 m | 6.07 m x 3.48 m |
https://www.realtor.ca/real-estate/28807698/10-white-oaks-road-barrie-south-shore-south-shore
Contact Us
Contact us for more information
Mark Faris
Broker
443 Bayview Drive
Barrie, Ontario L4N 8Y2
(705) 797-8485
(705) 797-8486
www.faristeam.ca/
Ania Koziorowski
Salesperson
443 Bayview Drive
Barrie, Ontario L4N 8Y2
(705) 797-8485
(705) 797-8486
www.faristeam.ca/



































































































