100 Bruce St Thunder Bay, Ontario P7A 5W6
$159,000
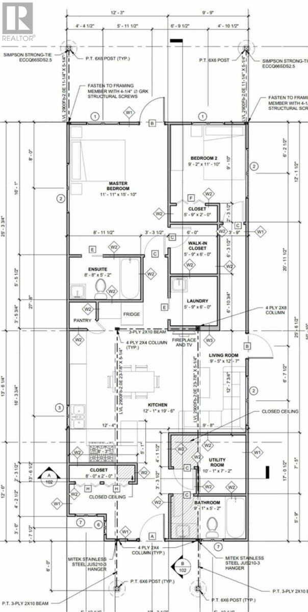
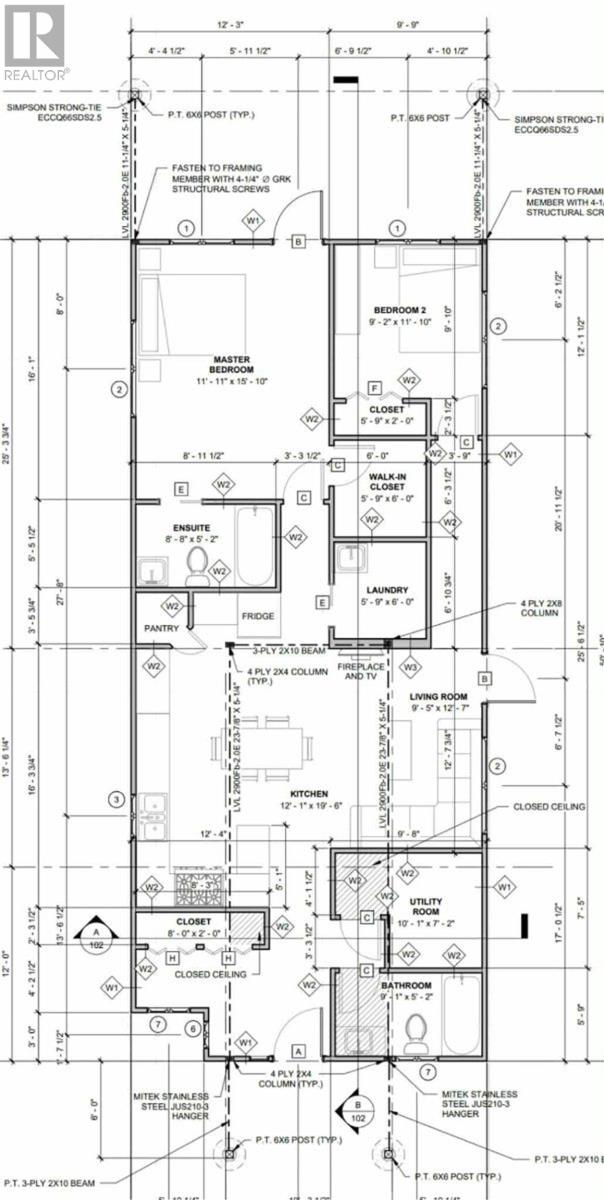
Great opportunity in BEAUTIFUL Grandview area! Welcome to 100 Bruce St! All the preliminary work is done! property has an existing 28 x 22 Garage with all Sewer/Water on site., Blueprints and Permits are Completed and can be Transferred for a Fantastic 2 Bedroom, 2 Bath Core Floor. Or Create you own Design! Call for more info, Documents and Feature Sheet available. (id:50886)
Property Details
| MLS® Number | TB253510 |
| Property Type | Vacant Land |
| Community Name | Thunder Bay |
| Communication Type | High Speed Internet |
Building
| Utility Water | Municipal Water |
Land
| Access Type | Road Access |
| Acreage | No |
| Sewer | Municipal Sewage System |
| Size Depth | 110 Ft |
| Size Frontage | 33.0000 |
| Size Total Text | Under 1/2 Acre |
Utilities
| Cable | Available |
| Electricity | Available |
| Natural Gas | Available |
| Telephone | Available |
https://www.realtor.ca/real-estate/29118883/100-bruce-st-thunder-bay-thunder-bay
Contact Us
Contact us for more information
Keith Holmstrom
Salesperson
Royal LePage Lannon Realty
1141 Barton St
Thunder Bay, Ontario P7B 5N3
1141 Barton St
Thunder Bay, Ontario P7B 5N3
(807) 623-5011
(807) 623-3056
WWW.ROYALLEPAGETHUNDERBAY.COM























