1064 Dew Drop Road Sudbury, Ontario P3G 1L2
$2,990,000
This is truly a unique property. Over 700 feet of water frontage on Sudbury's beautiful sought after Long Lake with views both east and west. From the wrap around deck off the kitchen you can watch the sun come up in the morning and watch it set at night. This 3 bedroom family home is quite spectacular with 24 foot vaulted ceilings in the great room and it showcases a fireplace stretching floor to ceiling. On the east side of the home, at the water's edge, is a sauna party zone that comes complete with a loft bedroom, heated floors, and a 2 pc washroom. In front of the sauna building there is a spacious stamped concrete patio area to sit and watch the lake go by. On the west side of the point, there is a 50 x 50' aircraft hangar built into solid rock with 19' ceilings. This is currently used as a hangar but can be used for an amazing basketball court or any other game where an unobstructed high ceiling 2500 sq. ft. area can be played. On top of the hangar there is a 50 x 50 garage that faces the road. Both floors of this building have 3 pc washrooms. All of the buildings are built with ICF foam blocks filled with rebar and concrete. The concrete extends all the way to the roof deck. All floors in the 3 buildings are heated and of course the main house and sauna party zone has central A/C. The lower walk out level of the home is an empty canvas. This lower area (approximately 1800 sq. ft.) would make a perfect in-law suite for generational living. There are large windows looking east and west down the lake and the drywall is done and primed. There are 2 bathrooms roughed in on this level, the floor and ceiling finishes would be up to you. Call now to arrange your private viewing of this incredible package. (id:50886)
Property Details
| MLS® Number | 2125180 |
| Property Type | Single Family |
| Amenities Near By | Golf Course, Hospital, Schools, University |
| Equipment Type | None |
| Rental Equipment Type | None |
| Road Type | Paved Road |
| Storage Type | Outside Storage |
| Structure | Plane Hangar, Patio(s), Workshop |
| Water Front Type | Waterfront On Lake |
Building
| Bathroom Total | 6 |
| Bedrooms Total | 3 |
| Appliances | Range - Gas, Refrigerator, Water Treatment |
| Architectural Style | 3 Level |
| Basement Type | Full |
| Cooling Type | Central Air Conditioning |
| Exterior Finish | Stone, Stucco |
| Fire Protection | Smoke Detectors |
| Fireplace Fuel | Wood |
| Fireplace Present | Yes |
| Fireplace Total | 1 |
| Fireplace Type | Conventional |
| Flooring Type | Hardwood, Tile |
| Foundation Type | Concrete Perimeter |
| Half Bath Total | 4 |
| Heating Type | Heat Pump, In Floor Heating |
| Roof Material | Asphalt Shingle |
| Roof Style | Unknown |
| Stories Total | 2 |
| Type | House |
Parking
| Gravel |
Land
| Access Type | Year-round Access |
| Acreage | Yes |
| Land Amenities | Golf Course, Hospital, Schools, University |
| Sewer | Septic System |
| Size Total Text | 1 - 3 Acres |
| Zoning Description | R1-2 |
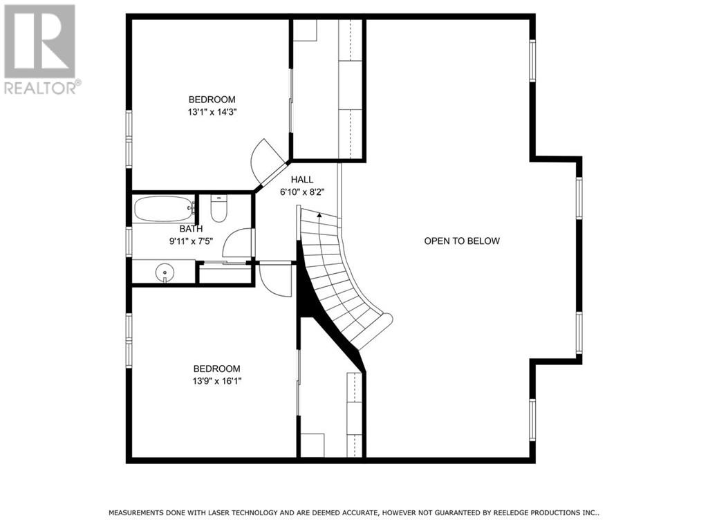
Rooms
| Level | Type | Length | Width | Dimensions |
|---|---|---|---|---|
| Second Level | Bedroom | 13.5 x 14.5 | ||
| Second Level | Bedroom | 13.5 x 14.5 | ||
| Main Level | Primary Bedroom | 30 x 13.67 | ||
| Main Level | Living Room | 37.42 x 25 | ||
| Main Level | Kitchen | 15.42 x 22.67 |
https://www.realtor.ca/real-estate/28983873/1064-dew-drop-road-sudbury
Contact Us
Contact us for more information
Richard Stewart
Broker
(705) 671-2678
1 (888) 420-2222
1764 Regent St
Sudbury, Ontario P3E 3Z8
(705) 671-2222
(705) 671-2678
remaxsudbury.com/

























































































































































