115 Picton Main Street Prince Edward County, Ontario K0K 2T0
$1,900,000
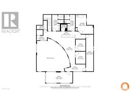
FOR SALE OR LEASE! A remarkable commercial opportunity! The former BMO building, built in 1993 (with brick meant to embody the traditional "sandbanks brick" of historic Prince Edward County) is zoned core commercial and lends itself to a variety of commercial and combined commercial/residential uses. The building itself is situated within walking distance of everything Picton Main Street has to offer, with street access and street parking on both Main and Walton Streets. The lot itself has plenty of private parking and excellent visuals from Main Street for signage. The current main level layout is offices, teller spaces, open atrium, vault and utility rooms. The stairs or elevator lead to the second level, which is an atrium-style open design that houses offices, kitchenette and dining space, and 2 multi-stall washrooms. With renovation, the building would lend itself well to a mixed use of residential apartments and main floor commercial/retail space, restaurant, or perhaps a micro-hotel? No further restrictive covenants on this property. (id:50886)
Property Details
| MLS® Number | X12257292 |
| Property Type | Office |
| Community Name | Picton Ward |
| Farm Type | Other |
| Features | Irregular Lot Size |
Building
| Bathroom Total | 2 |
| Age | 16 To 30 Years |
| Cooling Type | Fully Air Conditioned |
| Heating Fuel | Natural Gas |
| Heating Type | Forced Air |
| Size Interior | 5,682 Ft2 |
| Type | Offices |
| Utility Water | Municipal Water |
Land
| Acreage | No |
| Size Depth | 90 Ft ,6 In |
| Size Frontage | 122 Ft ,8 In |
| Size Irregular | 122.7 X 90.5 Ft ; Irregular Rectangle |
| Size Total Text | 122.7 X 90.5 Ft ; Irregular Rectangle |
| Zoning Description | Cc |
Contact Us
Contact us for more information
Tammy Noyes
Salesperson
(613) 476-2100
(613) 476-3482
c21lanthorn.ca/county-office
William Rorabeck
Broker of Record
(613) 392-2511
(613) 392-9385
www.c21lanthorn.ca/trenton-office

















































