11650 Rocksprings Road Elizabethtown-Kitley, Ontario K0G 1R0
$699,000
Stunning New Build (2023) on 49.8 Private Acres Country Living with Modern Convenience! Welcome to this exquisite 2023-built home offering over 3,000 sq. ft. of luxurious living space, perfectly blending modern comfort with serene countryside living. Nestled on 49.8 private acres, this property provides privacy while remaining just minutes from amenities10 mins to North Augusta, 18 mins to Merrickville, 20 mins to Brockville, and 25 mins to Smiths Falls. Home Features: 5 Spacious Bedrooms, including a primary suite with a walk-in closet & ensuite 3 Full Bathrooms Open-Concept Main Floor with a modern kitchen (granite counters, 2024 high-end induction/convection range, skylights) Two Recreation Rooms plenty of space for family & entertaining Fully Finished Basement Apartment ideal for big families (2 beds, full bath, kitchenette) Oversized 2-Car Garage (13ft ceilings fits a car lift!, 50-amp power, GenerLink-ready for backup generator) 2024 Samsung Washer & Dryer Bell Fiber Internet high-speed connectivity in the countryside!Land & Outdoor Highlights: Almost 50 Acres of Private Trails perfect for hiking, exploring, or creating your own retreat Tranquil & Secluded Setting enjoy peace and privacy in nature Premium Construction & Efficiency: Full ICF Construction superior insulation, energy efficiency & storm resistance. Don't miss this rare opportunity to own a modern, move-in-ready home with income potential, ample space, and breathtaking acreage all within easy reach of town conveniences! (id:50886)
Property Details
| MLS® Number | X12424572 |
| Property Type | Single Family |
| Community Name | 811 - Elizabethtown Kitley (Old Kitley) Twp |
| Equipment Type | Propane Tank |
| Features | Irregular Lot Size |
| Parking Space Total | 5 |
| Rental Equipment Type | Propane Tank |
Building
| Bathroom Total | 3 |
| Bedrooms Above Ground | 3 |
| Bedrooms Below Ground | 2 |
| Bedrooms Total | 5 |
| Appliances | Garage Door Opener Remote(s), Dishwasher, Dryer, Garage Door Opener, Water Heater, Stove, Washer, Refrigerator |
| Architectural Style | Bungalow |
| Basement Development | Finished |
| Basement Type | N/a (finished) |
| Construction Style Attachment | Detached |
| Cooling Type | Central Air Conditioning |
| Exterior Finish | Vinyl Siding |
| Foundation Type | Concrete |
| Heating Fuel | Propane |
| Heating Type | Forced Air |
| Stories Total | 1 |
| Size Interior | 1,500 - 2,000 Ft2 |
| Type | House |
Parking
| Attached Garage | |
| Garage |
Land
| Acreage | Yes |
| Sewer | Septic System |
| Size Depth | 3633 Ft |
| Size Frontage | 248 Ft |
| Size Irregular | 248 X 3633 Ft |
| Size Total Text | 248 X 3633 Ft|50 - 100 Acres |
| Zoning Description | Residential / Other |
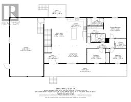
Rooms
| Level | Type | Length | Width | Dimensions |
|---|---|---|---|---|
| Basement | Bedroom 4 | 4.57 m | 3.09 m | 4.57 m x 3.09 m |
| Basement | Bedroom 5 | 3.99 m | 4.33 m | 3.99 m x 4.33 m |
| Basement | Recreational, Games Room | 5.43 m | 4.48 m | 5.43 m x 4.48 m |
| Basement | Bathroom | 2.71 m | 3.05 m | 2.71 m x 3.05 m |
| Basement | Utility Room | 4.19 m | 4.48 m | 4.19 m x 4.48 m |
| Basement | Recreational, Games Room | 3.47 m | 4.48 m | 3.47 m x 4.48 m |
| Basement | Recreational, Games Room | 4.05 m | 4.33 m | 4.05 m x 4.33 m |
| Main Level | Foyer | 2.84 m | 3.42 m | 2.84 m x 3.42 m |
| Main Level | Living Room | 5.45 m | 3.42 m | 5.45 m x 3.42 m |
| Main Level | Dining Room | 5.5 m | 4.43 m | 5.5 m x 4.43 m |
| Main Level | Kitchen | 3.866 m | 5.47 m | 3.866 m x 5.47 m |
| Main Level | Bedroom | 4.39 m | 3.93 m | 4.39 m x 3.93 m |
| Main Level | Bathroom | 3.18 m | 1.53 m | 3.18 m x 1.53 m |
| Main Level | Bedroom 2 | 3.77 m | 2.9 m | 3.77 m x 2.9 m |
| Main Level | Bedroom 3 | 3.27 m | 2.9 m | 3.27 m x 2.9 m |
| Main Level | Bathroom | 2.74 m | 1.8 m | 2.74 m x 1.8 m |
| Main Level | Laundry Room | 2.14 m | 1.87 m | 2.14 m x 1.87 m |
Contact Us
Contact us for more information
Amanda Hayashi
Broker
www.youtube.com/embed/w_CKiHQT8Io
www.amandahayashi.com/
www.facebook.com/amandabesthomes/
@amandarealtor2/
1678 Bloor St., West
Toronto, Ontario M6P 1A9
(416) 769-1616
(416) 769-1524
www.remaxwest.com



































































































