12 Churchill Drive S Whitchurch-Stouffville, Ontario L4A 7X3
$899,000
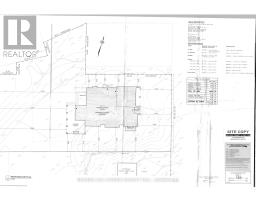
OFFERS ANYTIME! Rare building lot w water allocation & approved plans & permits to build UP TO to a 4500 square foot home steps from Musselmans Lake, a quiet lakeside community nestled in York Region -a hidden gem just minutes from the 404 and Stouffville amenities! Thisirregularly shaped 90 x 200 foot lot has had all the work done for you- almost 1/2 acre to create your dream home -all applicable development fees have been paid and architectural plans drawn and permits approved for a build of up to 4500 square foot home w possibillities to scale back and build a smaller home if desired. Most importantly, this lot comes with water allocation , meaning a water supply to the lot ,which is difficult to obtain in the area. Steps from the water, close to community areas like Coultice Park ,summer evenings on the patio at nearby Fishbone By the Lake -this is lakeside living minutes from every convenience. Why fight traffic to the cottage when tranquility is yours the second you walk in the door! **EXTRAS** Ideally located, 12 Churchill Drive is just 15 mins from the 404, 12 mins to the Stouffville GO Transit station, 12 mins to all of the large scale shopping available in Stouffville, all the restaurants, cafes & events. (id:50886)
Property Details
| MLS® Number | N12459185 |
| Property Type | Vacant Land |
| Community Name | Stouffville |
| Amenities Near By | Park, Schools |
| Community Features | Community Centre |
| Features | Cul-de-sac, Conservation/green Belt |
Building
| Size Interior | 0 - 699 Ft2 |
| Utility Water | Municipal Water |
Land
| Acreage | No |
| Land Amenities | Park, Schools |
| Sewer | Septic System |
| Size Depth | 200 Ft |
| Size Frontage | 90 Ft |
| Size Irregular | 90 X 200 Ft ; Irregular As Per Survey |
| Size Total Text | 90 X 200 Ft ; Irregular As Per Survey|1/2 - 1.99 Acres |
| Surface Water | Lake/pond |
Utilities
| Cable | Available |
| Electricity | Available |
Contact Us
Contact us for more information
Adrianne Parker
Broker
www.walkerparker.ca/
www.facebook.com/WalkerParkerRealEstate
5071 Highway 7 East #5
Unionville, Ontario L3R 1N3
(905) 477-0011
(905) 477-6839
Cathy Walker
Salesperson
(416) 953-2730
www.walkerparker.ca/
cathywalkeratremax/
5071 Highway 7 East #5
Unionville, Ontario L3R 1N3
(905) 477-0011
(905) 477-6839
Adele Palmer
Salesperson
(416) 624-2079
5071 Highway 7 East #5
Unionville, Ontario L3R 1N3
(905) 477-0011
(905) 477-6839



















































