122 Burton Street Unit# 1 Hamilton, Ontario L8L 3R5
$2,600 MonthlyInsurance, Heat, Electricity, Water
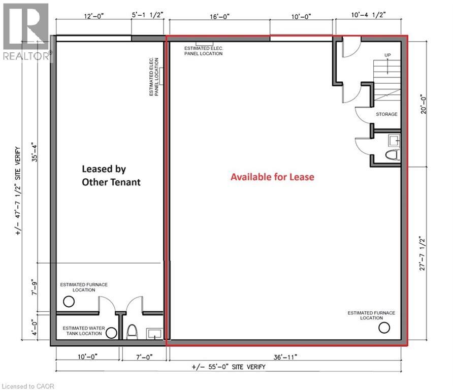
Looking for a place to store your vehicles this winter, work materials, or just want an industrial style office for your business? Look no further than this heated garage/office/storage/warehouse space. A small storage room and two-piece washroom are also in the unit. The garage door enables you easy access into the space for loading and unloading, or just for some fresh air. Flexible lease term, but looking for minimum 1 year commitment. 2nd floor office and other garage bay are occupied. NO CAR DETAILING USE. Flat monthly rent which includes the electric heating, water, and use of 1 parking spot. Inquire today! (id:50886)
Property Details
| MLS® Number | 40787115 |
| Property Type | Other |
| Amenities Near By | Hospital, Marina, Public Transit |
| Community Features | Industrial Park |
| Features | Paved Driveway |
| Parking Space Total | 1 |
Building
| Basement Type | None |
| Construction Material | Concrete Block, Concrete Walls |
| Exterior Finish | Concrete |
| Fire Protection | Alarm System |
| Foundation Type | Block |
| Stories Total | 2 |
| Size Exterior | 2000.0000 |
| Size Interior | 2,000 Ft2 |
| Utility Water | Municipal Water |
Parking
| Attached Garage |
Land
| Access Type | Highway Access |
| Acreage | No |
| Land Amenities | Hospital, Marina, Public Transit |
| Sewer | Municipal Sewage System |
| Size Depth | 100 Ft |
| Size Frontage | 66 Ft |
| Size Total Text | Under 1/2 Acre |
| Zoning Description | Light Industrial (m6, 375) Zone |
Utilities
| Electricity | Available |
https://www.realtor.ca/real-estate/29096235/122-burton-street-unit-1-hamilton
Contact Us
Contact us for more information
Rachel Martin
Salesperson
(905) 664-2300
860 Queenston Road
Stoney Creek, Ontario L8G 4A8
(905) 545-1188
(905) 664-2300
www.remaxescarpment.com/

































