1293 Parc Du Village Road Ottawa, Ontario K1C 7B2
$699,900
Welcome to this well maintained single family home located in the family friendly and well established neighbourhood of Convent Glen. Situated on a desirable corner lot with mature trees, this home offers a classic red brick exterior, double wide driveway leading to a covered front porch. Open kitchen with tiled flooring, sleek stainless steel appliances, abundant soft close cabinetry, recess double sink, stylish tiled backsplash, opened up to eating area and sliding glass doors lead to backyard access. Adjacent to the kitchen is the spacious family room w/ a cozy wood burning fireplace and hardwood flooring. The formal dining room and living room flow seamlessly with large windows filling the space with light. Powder room w/ updated quartz countertop vanity. Enjoy added convenience w/ main floor laundry and indoor access to the double car garage. 4 generously sized bedrooms upstairs all w/ newly installed tight weave berber carpet. Primary bedroom w/ large windows, walk-in closet, 4 piece ensuite w/ separate stand-up shower and tub. Second full bath upstairs w/ large quartz countertop vanity. The basement offers a fully finished large rec room with wide plank flooring as well as lots of storage space. Large backyard complete w/ wooden deck. Located near amenities, schools, parks, public transit this home has it all for growing families! (id:50886)
Property Details
| MLS® Number | X12529844 |
| Property Type | Single Family |
| Community Name | 2007 - Convent Glen South |
| Amenities Near By | Public Transit |
| Equipment Type | Water Heater |
| Parking Space Total | 6 |
| Rental Equipment Type | Water Heater |
| Structure | Deck |
Building
| Bathroom Total | 3 |
| Bedrooms Above Ground | 4 |
| Bedrooms Total | 4 |
| Amenities | Fireplace(s) |
| Appliances | Dishwasher, Dryer, Stove, Washer, Window Coverings, Refrigerator |
| Basement Development | Finished |
| Basement Type | Full (finished) |
| Construction Style Attachment | Detached |
| Cooling Type | Central Air Conditioning |
| Exterior Finish | Brick, Vinyl Siding |
| Fireplace Present | Yes |
| Fireplace Total | 1 |
| Foundation Type | Poured Concrete |
| Half Bath Total | 1 |
| Heating Fuel | Natural Gas |
| Heating Type | Forced Air |
| Stories Total | 2 |
| Size Interior | 1,500 - 2,000 Ft2 |
| Type | House |
| Utility Water | Municipal Water |
Parking
| Attached Garage | |
| Garage |
Land
| Acreage | No |
| Fence Type | Fully Fenced, Fenced Yard |
| Land Amenities | Public Transit |
| Sewer | Sanitary Sewer |
| Size Depth | 104 Ft ,10 In |
| Size Frontage | 74 Ft ,9 In |
| Size Irregular | 74.8 X 104.9 Ft |
| Size Total Text | 74.8 X 104.9 Ft |
Rooms
| Level | Type | Length | Width | Dimensions |
|---|---|---|---|---|
| Second Level | Primary Bedroom | 4.29 m | 3.22 m | 4.29 m x 3.22 m |
| Second Level | Bedroom 2 | 3.4 m | 3.44 m | 3.4 m x 3.44 m |
| Second Level | Bedroom 3 | 4.27 m | 3.44 m | 4.27 m x 3.44 m |
| Second Level | Bedroom 4 | 2.92 m | 2.72 m | 2.92 m x 2.72 m |
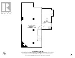
| Basement | Recreational, Games Room | 5.03 m | 11.3 m | 5.03 m x 11.3 m |
| Main Level | Living Room | 3.29 m | 4.04 m | 3.29 m x 4.04 m |
| Main Level | Dining Room | 3.29 m | 3.06 m | 3.29 m x 3.06 m |
| Main Level | Kitchen | 3.29 m | 4.28 m | 3.29 m x 4.28 m |
| Main Level | Family Room | 4.48 m | 3.32 m | 4.48 m x 3.32 m |
https://www.realtor.ca/real-estate/29088424/1293-parc-du-village-road-ottawa-2007-convent-glen-south
Contact Us
Contact us for more information
Greg Hamre
Salesperson
www.weknowottawa.com/
1180 Place D'orleans Dr Unit 3
Ottawa, Ontario K1C 7K3
(613) 837-0000
(613) 837-0005
www.remaxaffiliates.ca/
Melanie Giray
Salesperson
1180 Place D'orleans Dr Unit 3
Ottawa, Ontario K1C 7K3
(613) 837-0000
(613) 837-0005
www.remaxaffiliates.ca/
Steve Hamre
Salesperson
www.youtube.com/embed/tN9au_g_8i0
www.weknowottawa.com/
www.facebook.com/remaxottawa
x.com/stevehamre
www.linkedin.com/in/stevehamre/
www.instagram.com/steveknowsottawa/
www.youtube.com/@WeKnowOttawa
1180 Place D'orleans Dr Unit 3
Ottawa, Ontario K1C 7K3
(613) 837-0000
(613) 837-0005
www.remaxaffiliates.ca/

















































































