1422 - 9 Mabelle Avenue Toronto, Ontario M9A 0E1
$2,300 Monthly
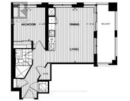
Welcome to Bloorvista at Islington Terrace by Tridel. A bright and modern 1-bedroom suite offering 577 sq. ft. of functional living space with a well-designed open-concept layout. Floor-to-ceiling windows in the living area and bedroom provide abundant natural light, while the wide living/dining space (as shown on the floor plan) opens directly onto a private balcony with expansive urban views. The sleek kitchen features full-size stainless steel appliances, quartz countertops, modern cabinetry, and a contemporary backsplash, aligning with the finishes shown in the photos. The living and dining areas offer a spacious, flexible layout, perfect for everyday living and entertaining. The bedroom includes a large mirrored closet, consistent with both the floor plan and interior photos, and provides comfortable space for a queen bed. The bathroom offers a glass-enclosed shower, modern vanity, and clean tile finishes. For added convenience, the suite includes a stacked Whirlpool washer and dryer located in the dedicated laundry closet off the entry hall, and one parking spot is included. Residents at Islington Terrace enjoy an impressive collection of amenities including an indoor pool, fitness centre, yoga studio, basketball court, party lounge, rooftop terrace, theatre room, BBQ areas, children's play zone, and 24-hour concierge. With Islington Station, shops, cafés, parks, and everyday essentials just steps away, this suite offers modern comfort and unbeatable convenience in one of Etobicoke's most connected communities. (id:50886)
Property Details
| MLS® Number | W12567574 |
| Property Type | Single Family |
| Neigbourhood | Etobicoke City Centre |
| Community Name | Islington-City Centre West |
| Amenities Near By | Park, Place Of Worship, Public Transit, Schools |
| Communication Type | High Speed Internet |
| Community Features | Pets Allowed With Restrictions |
| Features | Level Lot, Elevator, Balcony, Carpet Free |
| Parking Space Total | 1 |
| Pool Type | Indoor Pool |
Building
| Bathroom Total | 1 |
| Bedrooms Above Ground | 1 |
| Bedrooms Total | 1 |
| Age | 0 To 5 Years |
| Amenities | Security/concierge, Exercise Centre, Party Room, Visitor Parking |
| Basement Type | None |
| Cooling Type | Central Air Conditioning |
| Exterior Finish | Concrete |
| Heating Fuel | Natural Gas |
| Heating Type | Forced Air |
| Size Interior | 500 - 599 Ft2 |
| Type | Apartment |
Parking
| Underground | |
| Garage |
Land
| Acreage | No |
| Land Amenities | Park, Place Of Worship, Public Transit, Schools |
| Landscape Features | Landscaped |
Rooms
| Level | Type | Length | Width | Dimensions |
|---|---|---|---|---|
| Main Level | Foyer | Measurements not available | ||
| Main Level | Kitchen | 2.44 m | 1.83 m | 2.44 m x 1.83 m |
| Main Level | Dining Room | 4.72 m | 3.51 m | 4.72 m x 3.51 m |
| Main Level | Living Room | 4.72 m | 3.51 m | 4.72 m x 3.51 m |
| Main Level | Bedroom | 3.15 m | 2.9 m | 3.15 m x 2.9 m |
| Main Level | Laundry Room | Measurements not available |
Contact Us
Contact us for more information
Justin Jeffery
Salesperson
(289) 862-2927
www.jefferygroupre.ca/
521 Main Street
Georgetown, Ontario L7G 3T1
(905) 812-8123
(905) 812-8155
Julie Branco
Salesperson
www.jefferygroupre.ca/
@juliebrancorealtor/
@juliebrealtor/
www.linkedin.com/in/juliebranco
7145 West Credit Ave B1 #100
Mississauga, Ontario L5N 6J7
(905) 812-8123
(905) 812-8155



















































































