156 Wortley Road London South, Ontario N6C 3P5
$1,100,000
The Westland Building circa 1921 has been a visual highlight of the Wortley village and Old South for many years. It housed a pharmacy, an antique shop and now a respected art gallery that has championed many local artists from the novice to the experienced. 156 Wortley Road is a visual delight both inside and out - the period front windows and the vintage façade pull our imagination back into yesteryears when life moved at a much slower pace. One step inside the gallery and you sense the pride of ownership and the care that the current owners have put into the most recent transformation of the interior.It is our hope that the next steward of this magnificent landmark (2010 ACO-HLF Heritage Award winner for the facade restoration) will nurture it forward with the respect owed to a Grand Dame. The possibilities are endless - the quaint second floor could easily be a living quarters for a home occupation - the main floor is a blank canvas! As a realtor, we often coin these one of a kind properties as one of the jewels in the crown of an investors portfolio. 156 Wortley Road is situated in the heart of the Old South village - its commercial visibility is undeniably unparalleled. (id:50886)
Business
| Business Type | Retail and Wholesale |
| Business Sub Type | Retail misc. |
Property Details
| MLS® Number | X12233557 |
| Property Type | Retail |
| Community Name | South F |
| Features | Irregular Lot Size |
| Parking Space Total | 3 |
Building
| Bathroom Total | 2 |
| Age | 100+ Years |
| Appliances | Dishwasher, Microwave |
| Cooling Type | Fully Air Conditioned |
| Heating Fuel | Natural Gas |
| Heating Type | Forced Air |
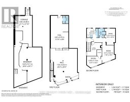
| Size Exterior | 2305 Sqft |
| Size Interior | 2,305 Ft2 |
| Utility Water | Municipal Water |
Land
| Acreage | No |
| Sewer | Sanitary Sewer |
| Size Frontage | 29 Ft ,4 In |
| Size Irregular | Bldg=29.34 Ft ; 96.8ft. X 29.41ft. X 59.13ft. X 22.77ft. |
| Size Total Text | Bldg=29.34 Ft ; 96.8ft. X 29.41ft. X 59.13ft. X 22.77ft. |
| Zoning Description | Bdc |
https://www.realtor.ca/real-estate/28494952/156-wortley-road-london-south-south-f-south-f
Contact Us
Contact us for more information
Dan Fraleigh
Broker
(519) 601-1160





































































