17 Young's Creek Road Port Ryerse, Ontario N3Y 4K2
$579,000
Welcome to 17 Young's Creek Road! This beautiful 19th-century character home, in the quaint village of Port Ryerse is situated on a spacious double-sized lot, just steps to Port Ryerse Harbour & beach on the shores of Lake Erie. Built in 1820, this 3 bedroom, 1 bathroom Two-Storey home, blends timeless appeal with thoughtful updates. Highlights to note include gorgeous wood floors and mouldings, a sun-filled covered porch, a gas fireplace/stove in the living room, a traditional dining room and quartz countertops in the kitchen. Set on 0.32 of an acre, this property offers a peaceful and serene setting with no direct street-facing neighbours and a private, tree-filled backdrop. This rare find provides historic charm and a tranquil setting, only an 8 minute walk to the water. Recent upgrades include new UV Water Treatment System & Water Softener (2025), Pine floors sanded and refinished (2024), installation of wood wall-panelling and new flooring in primary bedroom(2024) & Quartz countertops installed in kitchen (2021). Click on the links to view the video and virtual tour, then call to book your private showing today! (id:50886)
Open House
This property has open houses!
1:00 pm
Ends at:3:00 pm
Hosted by REALTOR® RYAN TYNDALL
Property Details
| MLS® Number | 40770546 |
| Property Type | Single Family |
| Amenities Near By | Beach, Place Of Worship |
| Community Features | Quiet Area, School Bus |
| Equipment Type | Rental Water Softener |
| Features | Crushed Stone Driveway, Country Residential, Private Yard |
| Parking Space Total | 6 |
| Rental Equipment Type | Rental Water Softener |
| Structure | Porch |
Building
| Bathroom Total | 1 |
| Bedrooms Above Ground | 3 |
| Bedrooms Total | 3 |
| Appliances | Dryer, Refrigerator, Water Softener, Washer, Gas Stove(s), Window Coverings |
| Architectural Style | 2 Level |
| Basement Development | Unfinished |
| Basement Type | Full (unfinished) |
| Constructed Date | 1820 |
| Construction Material | Wood Frame |
| Construction Style Attachment | Detached |
| Cooling Type | None |
| Exterior Finish | Brick, Wood |
| Fireplace Present | Yes |
| Fireplace Total | 1 |
| Foundation Type | Piled |
| Heating Fuel | Electric, Natural Gas |
| Heating Type | Baseboard Heaters, Forced Air |
| Stories Total | 2 |
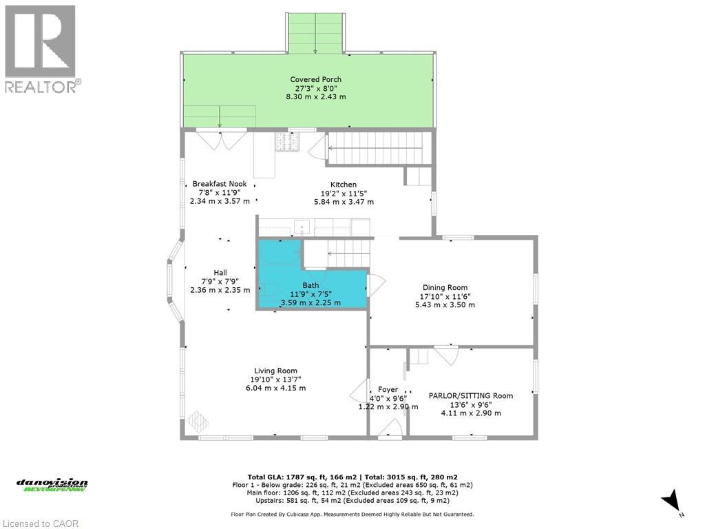
| Size Interior | 1,787 Ft2 |
| Type | House |
| Utility Water | Cistern, Well |
Land
| Acreage | No |
| Fence Type | Partially Fenced |
| Land Amenities | Beach, Place Of Worship |
| Landscape Features | Landscaped |
| Sewer | Septic System |
| Size Depth | 107 Ft |
| Size Frontage | 132 Ft |
| Size Irregular | 0.32 |
| Size Total | 0.32 Ac|under 1/2 Acre |
| Size Total Text | 0.32 Ac|under 1/2 Acre |
| Zoning Description | Rh |
Rooms
| Level | Type | Length | Width | Dimensions |
|---|---|---|---|---|
| Second Level | Primary Bedroom | 14'11'' x 13'7'' | ||
| Second Level | Bedroom | 14'8'' x 9'6'' | ||
| Second Level | Bedroom | 11'6'' x 11'6'' | ||
| Main Level | 4pc Bathroom | Measurements not available | ||
| Main Level | Living Room | 19'10'' x 13'7'' | ||
| Main Level | Living Room | 7'9'' x 7'9'' | ||
| Main Level | Breakfast | 7'8'' x 11'9'' | ||
| Main Level | Kitchen | 19'2'' x 11'5'' | ||
| Main Level | Dining Room | 17'10'' x 11'6'' | ||
| Main Level | Sitting Room | 13'6'' x 9'6'' | ||
| Main Level | Foyer | 4'0'' x 9'6'' |
Utilities
| Electricity | Available |
| Natural Gas | Available |
https://www.realtor.ca/real-estate/28873341/17-youngs-creek-road-port-ryerse
Contact Us
Contact us for more information
Nora Taylor
Salesperson
231 Main Street
Port Dover, Ontario N0A 1N0
(519) 583-3555
(519) 426-2424
www.simcoerealty.com/













































































