1741 Doe Lake Road Gravenhurst, Ontario P1P 1R3
$779,900
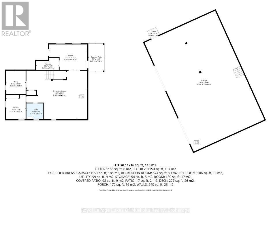
Calling all hobby farmers and homesteaders! Offered is a great opportunity to plant your roots close to town. Over 4 acres featuring a partially renovated raised bungalow, a large and well set up shop, a two stall horse barn, a chicken coop, small pond and excellent privacy. Move right into this 2 bed, 2 bath home and add your own flair by finishing the walkout basement. Plenty of work has been done recently on the home including a new breaker panel, newer windows, hot water tank, renovated bathrooms, propane furnace, decks, pellet stove and more! Outside you'll find a 36'x56' shop with 16' ceilings, heated floors and a car lift. The shop has a timber framed partially finished mezzanine for storage and great built in storage cabinets. The property is fairly level, has a large fenced paddock, raised garden beds, a homemade wood fired cold smoker and great landscaping. Well located only 10 mins from Gravenhurst on sought after Doe Lake Road. This is the whole package. Call now. (id:50886)
Property Details
| MLS® Number | X12436208 |
| Property Type | Single Family |
| Community Name | Muskoka (S) |
| Community Features | School Bus |
| Equipment Type | Propane Tank |
| Features | Wooded Area, Irregular Lot Size, Partially Cleared, Level |
| Parking Space Total | 18 |
| Rental Equipment Type | Propane Tank |
| Structure | Deck, Paddocks/corralls, Barn, Barn, Workshop |
| View Type | Lake View |
Building
| Bathroom Total | 2 |
| Bedrooms Above Ground | 2 |
| Bedrooms Total | 2 |
| Age | 31 To 50 Years |
| Appliances | Hot Tub, Dryer, Microwave, Range, Washer, Refrigerator |
| Architectural Style | Raised Bungalow |
| Basement Features | Separate Entrance |
| Basement Type | N/a |
| Construction Style Attachment | Detached |
| Cooling Type | None |
| Exterior Finish | Steel, Vinyl Siding |
| Fireplace Fuel | Pellet |
| Fireplace Present | Yes |
| Fireplace Type | Stove |
| Foundation Type | Block |
| Heating Fuel | Propane |
| Heating Type | Forced Air |
| Stories Total | 1 |
| Size Interior | 1,100 - 1,500 Ft2 |
| Type | House |
| Utility Water | Dug Well |
Parking
| Detached Garage | |
| Garage |
Land
| Access Type | Year-round Access |
| Acreage | Yes |
| Sewer | Septic System |
| Size Depth | 1096 Ft |
| Size Frontage | 304 Ft |
| Size Irregular | 304 X 1096 Ft |
| Size Total Text | 304 X 1096 Ft|2 - 4.99 Acres |
| Surface Water | Pond Or Stream |
Utilities
| Electricity | Installed |
https://www.realtor.ca/real-estate/28932927/1741-doe-lake-road-gravenhurst-muskoka-s-muskoka-s
Contact Us
Contact us for more information
Daniel Cleland
Broker
www.clelandsmuskoka.com/
www.facebook.com/clelandsmuskoka
820 Muskoka Rd S, Unit 3
Gravenhurst, Ontario P1P 1K2
(705) 687-3474
www.rlpmuskoka.com/















































































