18 - 540 Clarke Road London East, Ontario N5V 2C7

2,600 ft2
Partially Air Conditioned Other Acreage

$14 / ft2

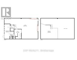
RARE OPPORTUNITY! Unit 18 at 540 Clarke Road offers 2,600 SF of versatile space featuring two 12'x10' drive-in doors and 15 ft clear height ceilings, plus an additional 800 SF mezzanine at no extra cost. The layout includes a spacious warehouse area, reception/retail area, two offices, and two washrooms-perfect for a wide range of business operations. Located at the high-traffic corner of Clarke Road and Dundas Street, this property is zoned RSC4/LI7, permitting numerous uses such as Warehousing and distribution, studios, auto supply stores, commercial recreation establishments, bake shops, custom workshops, service trades, repair establishments, building or contracting businesses, and brewing-on-premises operations (automotive use limited to detailing only). Enjoy excellent exposure, easy access to Veterans Memorial Parkway and major routes, and optional pylon signage for $50/month. Total gross rent is $4,149.16/month plus HST and utilities ($14.00/SF net + $5.15/SF TMI). (id:50886)

Property Details

MLS® Number X12473275
Property Type Industrial
Community Name East I

Building

Cooling Type Partially Air Conditioned
Heating Type Other
Size Interior 2,600 Ft2
Type Multi-tenant Industrial
Utility Water Municipal Water

Land

Acreage Yes
Size Depth 600 Ft
Size Frontage 100 Ft
Size Irregular 1.38
Size Total 1.38 Ac
Size Total Text 1.38 Ac
Zoning Description Rsc4/li7

https://www.realtor.ca/real-estate/29013367/18-540-clarke-road-london-east-east-i-east-i

Contact Us

Contact us for more information

Generating Captcha

Rami Rahy
Salesperson

(866) 530-7737

Exp Realty
380 Wellington Street
London, Ontario N6A 5B5

(866) 530-7737

Michael L. Tkaczyk
Salesperson

(519) 859-9494
(519) 859-9494
michaeltkaczyk.exprealty.com/
www.facebook.com/Shoplondonhomes
www.linkedin.com/in/michael-tkaczyk-a3a90422/
www.instagram.com/michaeltkaczyk_realtor/

Exp Realty
380 Wellington Street
London, Ontario N6A 5B5

(866) 530-7737

Your Favourites

 

No Favourites Found