180 Thornbush Boulevard Brampton, Ontario L7A 0G4
$759,000
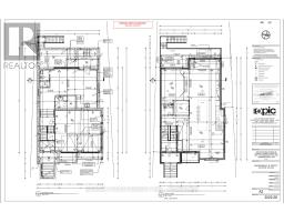
POWER OF SALE! Attention builders and developers! Don't miss this rare opportunity to build your dream luxury home on a fully serviced, premium lot in one of the areas most prestigious new neighbourhoods. Surrounded by custom multi-million-dollar homes, this property offers the perfect blend of elegance and tranquility. It comes with permit-ready architectural drawings for a stunning 4-bedroom, 4-bathroom open-concept home, and all city permits are already approved ready for immediate construction. Located close to major highways, top-rated schools, beautiful parks, and shopping, this lot offers both convenience and class. Whether you're building for personal use or as an investment, this is a golden opportunity to create a home that truly defines luxury living. (id:50886)
Property Details
| MLS® Number | W12487028 |
| Property Type | Vacant Land |
| Community Name | Northwest Brampton |
Building
Land
| Acreage | No |
| Size Depth | 89 Ft ,4 In |
| Size Frontage | 43 Ft |
| Size Irregular | 43.01 X 89.34 Ft |
| Size Total Text | 43.01 X 89.34 Ft|under 1/2 Acre |
Utilities
| Cable | Available |
| Electricity | Available |
| Sewer | Available |
Contact Us
Contact us for more information
Inderjeet Singh
Broker
(647) 515-2066
www.teaminder.ca/
www.facebook.com/BUY-SELL-WITH-INDER-282901658988423/?modal=admin_todo_tour
twitter.com/Inderje16028274
www.linkedin.com/in/inderjeet-singh-95684084/
2720 North Park Drive #201
Brampton, Ontario L6S 0E9
(905) 456-1010
(905) 673-8900



