1801 - 62 Wellesley Street W Toronto, Ontario M5S 2X3
$1,099,999Maintenance, Heat, Common Area Maintenance, Insurance, Water, Parking
$1,570 Monthly
Maintenance, Heat, Common Area Maintenance, Insurance, Water, Parking
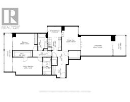
$1,570 MonthlyWelcome to Queen's Park Place! Boutique building with only 100 suites. Unit 1801 is a sprawling 2-bedroom, 2-bath suite with over 1,580 square feet of living space. The unique floor plan features a retro-chic sunken living room, separate dining area, a large eat-in kitchen, two generously sized bedrooms with 2 full baths and stunning north and south views from two sun-filled sunrooms, both offering clear City views. An abundance of storage throughout includes a kitchen pantry, an extra-large en-suite storage locker, a linen closet, and a 9-foot-wide walk-in closet in the primary bedroom. Multiple temperature control systems are installed in the living room, dining room, bedroom, and sunroom, supported by three HVAC units to ensure optimal comfort throughout the unit, allowing people in different areas to enjoy personalized climate control. The size and scale of this well-designed home offer endless potential. Enjoy a prime location just steps to Queen's Park, University of Toronto, major hospitals, and both Wellesley and Queen's Park subway stations. Surrounded by premier shopping, dining, cultural landmarks, and green spaces. A fantastic opportunity for end-users or investors seeking value, space, and location in one of Toronto's most dynamic neighbourhoods. (id:50886)
Property Details
| MLS® Number | C12250832 |
| Property Type | Single Family |
| Community Name | Bay Street Corridor |
| Amenities Near By | Hospital, Park, Public Transit |
| Community Features | Pets Allowed With Restrictions |
| Features | In Suite Laundry |
| Parking Space Total | 1 |
| Pool Type | Indoor Pool |
| Structure | Squash & Raquet Court |
| View Type | View, City View |
Building
| Bathroom Total | 2 |
| Bedrooms Above Ground | 2 |
| Bedrooms Below Ground | 2 |
| Bedrooms Total | 4 |
| Amenities | Exercise Centre, Sauna, Visitor Parking, Separate Heating Controls, Security/concierge |
| Appliances | Sauna |
| Basement Type | None |
| Cooling Type | Central Air Conditioning, Air Exchanger |
| Exterior Finish | Brick, Concrete |
| Fire Protection | Security Guard, Smoke Detectors |
| Flooring Type | Carpeted, Vinyl |
| Heating Fuel | Natural Gas |
| Heating Type | Forced Air |
| Size Interior | 1,400 - 1,599 Ft2 |
| Type | Apartment |
Parking
| Underground | |
| Garage |
Land
| Acreage | No |
| Land Amenities | Hospital, Park, Public Transit |
Rooms
| Level | Type | Length | Width | Dimensions |
|---|---|---|---|---|
| Flat | Foyer | 5.08 m | 2.46 m | 5.08 m x 2.46 m |
| Flat | Living Room | 6.07 m | 3.78 m | 6.07 m x 3.78 m |
| Flat | Dining Room | 4.83 m | 3.61 m | 4.83 m x 3.61 m |
| Flat | Kitchen | 2.52 m | 2.46 m | 2.52 m x 2.46 m |
| Flat | Eating Area | 2.52 m | 1.98 m | 2.52 m x 1.98 m |
| Flat | Primary Bedroom | 5.69 m | 3.4 m | 5.69 m x 3.4 m |
| Flat | Bedroom 2 | 5.38 m | 3.55 m | 5.38 m x 3.55 m |
| Flat | Solarium | 7.42 m | 1.65 m | 7.42 m x 1.65 m |
| Flat | Solarium | 4.78 m | 3.69 m | 4.78 m x 3.69 m |
| Flat | Storage | 2.26 m | 1.55 m | 2.26 m x 1.55 m |
Contact Us
Contact us for more information
Tammy Zhao
Salesperson
7303 Warden Ave #101
Markham, Ontario L3R 5Y6
(905) 940-3428
(905) 940-0293
kingsquayrealestate.c21.ca/





























































































