189 Pillsbury Drive Midland, Ontario L4R 0A3
$1,549,900
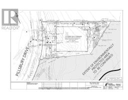
10.32 Acres Of Vacant Land With Close To 650 Feet Of Frontage On Highway 12. Proposed Development of 4 self-storage buildings; two single-storey, 10,118 sqft buildings, one two-storey, 21,000 sqft building and one three-storey 15,000 sqft building. Beautiful And Scenic Setting. Highway Commercial Zoning Allows For Many Uses Including Animal Hospital, Car Wash, Gas Bar, Auto Garage, Campground, Childcare Centre, Commercial Entertainment Establishment, Commercial School, Dry Cleaning, Fitness Centre, Funeral Home, Garden & Nursery, Motel & Hotel, Medical Use, Microbrewery, Pharmacy, Professional Office, Retail Store, Theater& More! (id:50886)
Property Details
| MLS® Number | S12422377 |
| Property Type | Vacant Land |
| Community Name | Midland |
| Farm Type | Other |
Building
| Cooling Type | None |
| Heating Type | Other |
| Size Interior | 10 Acres |
| Utility Water | Municipal Water |
Land
| Acreage | Yes |
| Size Depth | 450 Ft |
| Size Frontage | 450 Ft |
| Size Irregular | 10.32 |
| Size Total | 10.32 Ac |
| Size Total Text | 10.32 Ac |
| Zoning Description | Highway Commercial |
https://www.realtor.ca/real-estate/28903415/189-pillsbury-drive-midland-midland
Contact Us
Contact us for more information
Tyler Mclay
Salesperson
(647) 991-2432
187 King Street East
Toronto, Ontario M5A 1J5
(416) 637-8000
(416) 361-9969
Anthony Spano
Salesperson
(647) 921-8050
www.tylermclay.com/about/anthony-spano/
www.linkedin.com/in/anthony-spano-658062b6/
187 King Street East
Toronto, Ontario M5A 1J5
(416) 637-8000
(416) 361-9969







