19 Mitcham Drive Toronto, Ontario M8W 2J6

3 Bedroom 2 Bathroom 700 - 1,100 ft2
Central Air Conditioning Forced Air

$999,900

Fire Up the Grill and Embrace Backyard Living with Direct Views of Delma Park! Discover the charm and comfort of this lovely 2+1 bedroom detached home in the heart of West Alderwood. Set on an exceptional 41' x 125' lot with rare park-side privacy and no rear neighbours, this property offers space to grow and room to dream - ideal for first-time buyers, young families, or those looking to build or expand in a sought-after pocket. Step inside to a warm and inviting layout with a walkout from the main level to a private backyard oasis. Whether you're relaxing with your morning coffee or hosting summer get-togethers, the spacious patio and included hot tub make it a perfect outdoor retreat - with Delma Park as your backdrop. Major upgrades offer peace of mind for years to come, including exterior stucco with added insulation, roof (2022), newer furnace, Magic Windows with a 30-year warranty, and a tankless water heater. The beautifully renovated lower level feels like a private suite, featuring a large primary bedroom with walk-in closet and a luxurious spa-like ensuite - ideal for quiet relaxation or extended family. Located steps from Sir Adam Beck Park & School, Alderwood Community Centre, Etobicoke Valley Park trails, Sherway Gardens, Farm Boy, and Long Branch GO. Commuters will love quick access to Hwy 427, QEW, and Gardiner. Private driveway parks 3 cars. Don't miss this rare opportunity to secure a park-side lot in one of Alderwood's most loved communities - where convenience, nature, and neighbourhood charm come together. ***Flexible 1.5-storey layout featuring 2 bedrooms on the upper level, with the original 3rd bedroom on the main floor currently functioning as a dining room (easily converted back if desired). The lower level was thoughtfully designed as a primary retreat for a shift-working owner, offering a spacious bedroom, a huge walk-in closet, and a spa-inspired ensuite-ideal for those seeking privacy, quiet, or a separate sanctuary within the home.*** (id:50886)

Property Details

MLS® Number W12560788
Property Type Single Family
Community Name Alderwood
Amenities Near By Park, Public Transit, Schools
Community Features Community Centre
Equipment Type Water Heater, Water Heater - Tankless
Features Ravine, Backs On Greenbelt, Carpet Free
Parking Space Total 3
Rental Equipment Type Water Heater, Water Heater - Tankless
Structure Patio(s), Porch, Shed

Building

Bathroom Total 2
Bedrooms Above Ground 3
Bedrooms Total 3
Age 51 To 99 Years
Appliances Hot Tub, Water Heater - Tankless, Dishwasher, Dryer, Hood Fan, Stove, Washer, Window Coverings, Refrigerator
Basement Development Finished
Basement Type N/a (finished)
Construction Style Attachment Detached
Cooling Type Central Air Conditioning
Exterior Finish Concrete, Stucco
Foundation Type Block
Heating Fuel Natural Gas
Heating Type Forced Air
Stories Total 2
Size Interior 700 - 1,100 Ft2
Type House
Utility Water Municipal Water

Parking

No Garage

Land

Acreage No
Fence Type Fenced Yard
Land Amenities Park, Public Transit, Schools
Sewer Sanitary Sewer
Size Depth 125 Ft
Size Frontage 41 Ft ,8 In
Size Irregular 41.7 X 125 Ft
Size Total Text 41.7 X 125 Ft

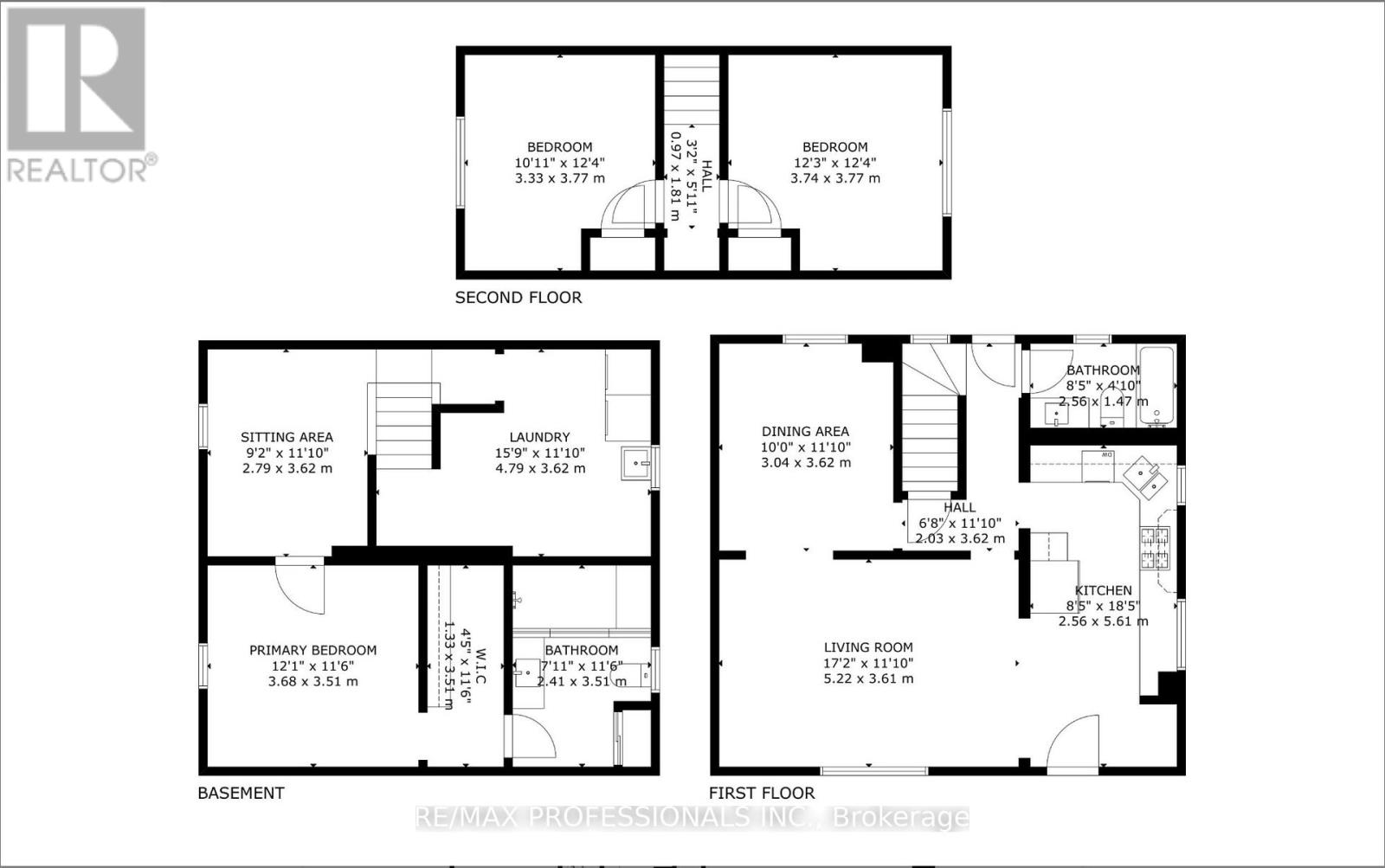
Rooms

Level Type Dimensions
Second Level Bedroom 2 3.33 m x 3.77 m
Second Level Bedroom 3 3.74 m x 3.77 m
Basement Primary Bedroom 3.68 m x 3.51 m
Basement Laundry Room 4.79 m x 3.62 m
Basement Recreational, Games Room 2.79 m x 3.62 m
Main Level Living Room 5.22 m x 3.61 m
Main Level Dining Room 3.04 m x 3.62 m
Main Level Kitchen 2.56 m x 5.61 m

https://www.realtor.ca/real-estate/29120372/19-mitcham-drive-toronto-alderwood-alderwood

Contact Us

Contact us for more information

Generating Captcha

Elizabeth Jane Johnson
Salesperson

(416) 233-1414
www.johnson-team.com/
www.facebook.com/JohnsonRETeam
twitter.com/thejohnsonteam

RE/MAX Professionals Inc.
1 East Mall Cres Unit D-3-C
Toronto, Ontario M9B 6G8

(416) 232-9000
(416) 232-1281

Brent Davey
Salesperson

(416) 236-1241
www.johnson-team.com/

RE/MAX Professionals Inc.
1 East Mall Cres Unit D-3-C
Toronto, Ontario M9B 6G8

(416) 232-9000
(416) 232-1281

Your Favourites

 

No Favourites Found