2 361 Hodder Ave Thunder Bay, Ontario P7A 1T6
$10 / ft2
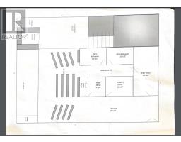
Affordable space for lease on busy Hodder Ave. This former community church with large open space (4,085) square feet), offers a stage, handicap accessible washrooms, several offices and full Kitchen capabilities. The unit does also offer a partial basement (Square footage does not include the basement - Great for extra storage). Great location for Day Care, Healthy Centre, Apartment, Retail and Service Commercial. Additional rent is approximately $2 psf. Tenant pays for utilities as well as snow plow. (id:50886)
Property Details
| MLS® Number | TB252505 |
| Property Type | Other |
| Community Name | Thunder Bay |
Building
| Size Interior | 4,085 Ft2 |
Land
| Acreage | No |
| Size Total Text | Under 1/2 Acre |
https://www.realtor.ca/real-estate/28728972/2-361-hodder-ave-thunder-bay-thunder-bay
Contact Us
Contact us for more information
Jason Mallon
Salesperson
1141 Barton St
Thunder Bay, Ontario P7B 5N3
(807) 623-5011
(807) 623-3056
WWW.ROYALLEPAGETHUNDERBAY.COM











