20 Grandy Lane Cambridge, Ontario N1R 8K2
$1,799,000
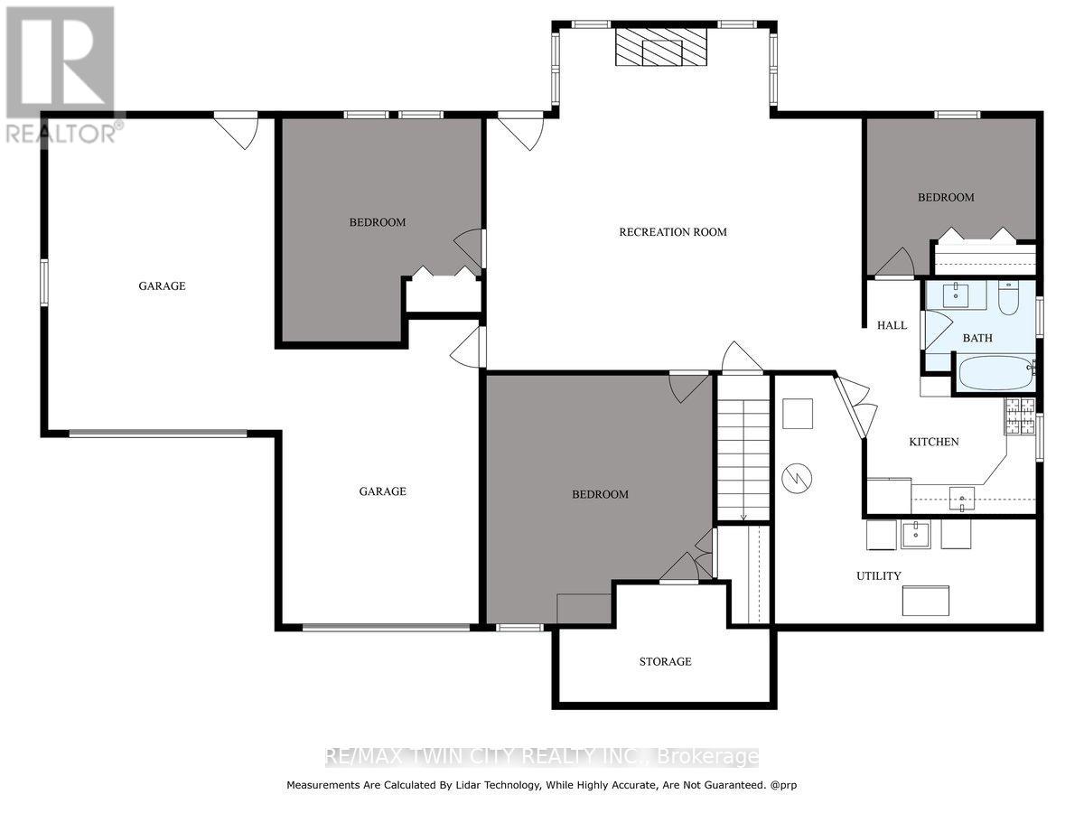
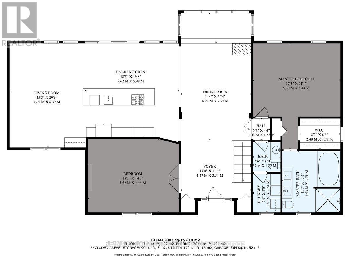
RARE OPPORTUNITY! Custom built raised bungalow on a 1.04-acre lot, offering court location surrounded by protected greenspace. This exclusive, 10 estate court rarely has homes come up for sale and 20 Grandy lane is one that takes full advantage of the natural features, completely backing onto mature forest with direct access to Millcreek conservation land. The home features a stunning all stone exterior with a beautiful retaining wall and carefully set natural stone steps, leading to the front door. The main level layout is wide open with large windows, designed to overlook the backyard from anywhere within the open space and providing access to the elevated multi-level deck completed with composite decking and glass rails. A rich, maple raised panel kitchen sits central with an oversized quartz countertop and raised bar sitting area; elegant crown molding finishes the cabinets to the ceiling with built-in stainless-steel appliances, gas cooktop. Equal in elegance is the built-in family room wall unit featuring gas fireplace insert. A three-sided fireplace separates the dining room from a sunken sitting area providing for an elevated view of the backyard; coffered ceiling accents and hardwood flooring span the space. Completing the space is a large bedroom, laundry, 2-piece bathroom, and the primary suite, complete with walk in closet and recently renovated(2023) 5-piece spa like ensuite. A hardwood staircase leads to the lower level which is still completely above grade; the home was strategically placed to take full advantage of the walkout. Lower level gives access to the oversized, staggered double car garage. Perfectly suited as a multi-generational home, offering three bedrooms, a recently renovated (2023) 4-piece bathroom, recreation room with gas fireplace, and kitchenette along with wet bar. Roof(2024), Additional oversized garden shed for equipment storage. Minutes from the 401, amenities, and schools. Don't miss this truly beautiful property! (id:50886)
Property Details
| MLS® Number | X12509614 |
| Property Type | Single Family |
| Features | Backs On Greenbelt, In-law Suite |
| Parking Space Total | 8 |
| Structure | Deck |
| View Type | River View |
Building
| Bathroom Total | 3 |
| Bedrooms Above Ground | 2 |
| Bedrooms Below Ground | 3 |
| Bedrooms Total | 5 |
| Appliances | Dishwasher, Dryer, Microwave, Stove, Washer, Refrigerator |
| Architectural Style | Raised Bungalow |
| Basement Development | Finished |
| Basement Features | Walk Out, Apartment In Basement |
| Basement Type | N/a (finished), N/a |
| Construction Style Attachment | Detached |
| Cooling Type | Central Air Conditioning |
| Exterior Finish | Stone |
| Fireplace Present | Yes |
| Fireplace Total | 2 |
| Foundation Type | Poured Concrete |
| Half Bath Total | 1 |
| Heating Fuel | Natural Gas |
| Heating Type | Forced Air |
| Stories Total | 1 |
| Size Interior | 2,000 - 2,500 Ft2 |
| Type | House |
| Utility Water | Municipal Water |
Parking
| Attached Garage | |
| Garage |
Land
| Acreage | No |
| Landscape Features | Landscaped |
| Sewer | Septic System |
| Size Irregular | 169.6 X 238 Acre |
| Size Total Text | 169.6 X 238 Acre |
Rooms
| Level | Type | Length | Width | Dimensions |
|---|---|---|---|---|
| Basement | Bedroom 3 | 4.04 m | 4.52 m | 4.04 m x 4.52 m |
| Basement | Bedroom 4 | 3.43 m | 3.17 m | 3.43 m x 3.17 m |
| Basement | Bathroom | 2.24 m | 2.29 m | 2.24 m x 2.29 m |
| Basement | Other | 3.81 m | 2.79 m | 3.81 m x 2.79 m |
| Basement | Bedroom 5 | 4.57 m | 5.05 m | 4.57 m x 5.05 m |
| Basement | Utility Room | 5.31 m | 5.05 m | 5.31 m x 5.05 m |
| Basement | Other | 4.27 m | 2.39 m | 4.27 m x 2.39 m |
| Basement | Recreational, Games Room | 7.62 m | 6.93 m | 7.62 m x 6.93 m |
| Main Level | Foyer | 4.27 m | 3.51 m | 4.27 m x 3.51 m |
| Main Level | Bedroom | 5.51 m | 4.44 m | 5.51 m x 4.44 m |
| Main Level | Kitchen | 5.61 m | 5.99 m | 5.61 m x 5.99 m |
| Main Level | Dining Room | 4.27 m | 7.72 m | 4.27 m x 7.72 m |
| Main Level | Living Room | 4.65 m | 6.32 m | 4.65 m x 6.32 m |
| Main Level | Primary Bedroom | 5.31 m | 6.45 m | 5.31 m x 6.45 m |
| Main Level | Bathroom | 3.53 m | 3.71 m | 3.53 m x 3.71 m |
| Main Level | Bathroom | 1.68 m | 1.83 m | 1.68 m x 1.83 m |
| Main Level | Laundry Room | 1.68 m | 2.34 m | 1.68 m x 2.34 m |
https://www.realtor.ca/real-estate/29067467/20-grandy-lane-cambridge
Contact Us
Contact us for more information
Emil Burca
Broker
83 Erb Street W Unit B
Waterloo, Ontario N2L 6C2
(519) 885-0200
(519) 885-4914

































































































