2028 Villa Nova Road Townsend, Ontario N0E 1R0
$1,039,900
Well maintained all brick bungalow on approximately 10 acres offers many improvements throughout. Featuring updated kitchen and bathroom, second bedroom with added storage cabinetry, refinished hardwood floors, California shutters and knock down texture ceilings. The updated Barn with loft and Britespan outbuilding offers the convenience of extra storage and parking. Within a short drive to Brantford and Hwy 403 to Hamilton. Make the move to rural living. Welcome home. (id:50886)
Property Details
| MLS® Number | 40706502 |
| Property Type | Single Family |
| Equipment Type | Propane Tank |
| Features | Crushed Stone Driveway, Country Residential, Sump Pump |
| Parking Space Total | 9 |
| Rental Equipment Type | Propane Tank |
Building
| Bathroom Total | 1 |
| Bedrooms Above Ground | 2 |
| Bedrooms Total | 2 |
| Appliances | Dryer, Refrigerator, Washer, Window Coverings, Garage Door Opener |
| Architectural Style | Bungalow |
| Basement Development | Unfinished |
| Basement Type | Full (unfinished) |
| Constructed Date | 1957 |
| Construction Style Attachment | Detached |
| Cooling Type | Central Air Conditioning |
| Exterior Finish | Brick |
| Foundation Type | Block |
| Heating Fuel | Propane |
| Heating Type | Forced Air |
| Stories Total | 1 |
| Size Interior | 1,107 Ft2 |
| Type | House |
| Utility Water | Drilled Well, Dug Well |
Parking
| Attached Garage |
Land
| Access Type | Road Access |
| Acreage | Yes |
| Sewer | Septic System |
| Size Irregular | 10 |
| Size Total | 10 Ac|10 - 24.99 Acres |
| Size Total Text | 10 Ac|10 - 24.99 Acres |
| Zoning Description | A |
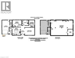
Rooms
| Level | Type | Length | Width | Dimensions |
|---|---|---|---|---|
| Basement | Storage | 38'4'' x 26'5'' | ||
| Main Level | Mud Room | 11'9'' x 4'7'' | ||
| Main Level | 5pc Bathroom | 11'11'' x 9'3'' | ||
| Main Level | Bedroom | 10'3'' x 9'9'' | ||
| Main Level | Primary Bedroom | 15'11'' x 11'11'' | ||
| Main Level | Living Room | 16'11'' x 13'3'' | ||
| Main Level | Foyer | 15'7'' x 6'6'' | ||
| Main Level | Eat In Kitchen | 14'3'' x 13'10'' |
https://www.realtor.ca/real-estate/28029342/2028-villa-nova-road-townsend
Contact Us
Contact us for more information
David Sharples
Salesperson
www.davidsharples.ca/
1122 Wilson Street W Suite 200
Ancaster, Ontario L9G 3K9
(905) 648-4451
www.royallepagestate.ca/
David Dunnet
Broker
(905) 648-7393
1122 Wilson Street West
Ancaster, Ontario L9G 3K9
(905) 648-4451
(905) 648-7393
www.royallepagestate.ca/

















































































