204 - 8960 Jane Street Vaughan, Ontario L4K 0N9
$2,450 Monthly
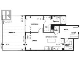
1 bedroom suite with 2 baths. Almost 700 sq ft interior space plus walk-out to HUGE 300 sq ft COVERED TERRACE !! Great modern open concept floor plan with floor to ceiling windows. The kitchen is equipped with quarts counters, center island, subway ceramic tiles and laminate floors throughout. Located in the the heart of Vaughan. Steps to ~ Vaughan Mills Mall, restaurants, grocery stores, shopping, parks, transit, GO train and minutes to Canadas Wonderland and major highways! World class amenities: outdoor pool, gym, theatre room, party room, rooftop terrace, wi-fi Lounge. (id:50886)
Property Details
| MLS® Number | N12490662 |
| Property Type | Single Family |
| Community Name | Concord |
| Amenities Near By | Public Transit, Park |
| Community Features | Pets Allowed With Restrictions |
| Features | Carpet Free, In Suite Laundry |
| Parking Space Total | 1 |
| Pool Type | Outdoor Pool |
Building
| Bathroom Total | 2 |
| Bedrooms Above Ground | 1 |
| Bedrooms Total | 1 |
| Age | New Building |
| Amenities | Exercise Centre, Party Room, Visitor Parking, Storage - Locker |
| Appliances | Dishwasher, Dryer, Hood Fan, Stove, Washer, Refrigerator |
| Basement Type | None |
| Cooling Type | Central Air Conditioning |
| Exterior Finish | Concrete |
| Flooring Type | Laminate |
| Half Bath Total | 1 |
| Heating Fuel | Electric |
| Heating Type | Forced Air |
| Size Interior | 600 - 699 Ft2 |
| Type | Apartment |
Parking
| Underground | |
| Garage |
Land
| Acreage | No |
| Land Amenities | Public Transit, Park |
Rooms
| Level | Type | Length | Width | Dimensions |
|---|---|---|---|---|
| Flat | Dining Room | 7.25 m | 3.32 m | 7.25 m x 3.32 m |
| Flat | Living Room | 7.25 m | 3.32 m | 7.25 m x 3.32 m |
| Flat | Kitchen | 7.25 m | 3.32 m | 7.25 m x 3.32 m |
| Flat | Media | 1 m | 0.5 m | 1 m x 0.5 m |
| Flat | Primary Bedroom | 3.35 m | 3.04 m | 3.35 m x 3.04 m |
https://www.realtor.ca/real-estate/29048006/204-8960-jane-street-vaughan-concord-concord
Contact Us
Contact us for more information
Rita Chemilian
Broker
ritachemilian.com/
www.facebook.com/pg/ritachemilianteam
161 Main Street
Unionville, Ontario L3R 2G8
(905) 940-4180
(905) 940-4199

















































