208 Drive-In Road Laurentian Valley, Ontario K8A 7P4
$1,495,000
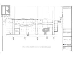
Wow...PRIME DEVELOPMENT OPPORTUNITY 25.7 ACRES IN RAPIDLY GROWING PEMBROKE! An exceptional 25.7-acre parcel of flat, table-top land is ideally positioned at 208 Drive-In Road, directly beside the proposed 884-unit residential subdivision featuring detached homes, townhomes, and high-density developments. * Zoned RES-A and supported by flexible planning policies from the Town of Pembroke, this site is designated for future residential use, offering tremendous potential for builders and developers * LOCATION HIGHLIGHTS: Ideally located just minutes from Petawawa and the Canadian Forces Base, and surrounded by newer homes, the site is within walking distance to Walmart, Winners, Home Depot, LCBO, Tim Hortons, SportChek, Subway, Staples, Marks, Pembroke Mall, Food Basics, and more * Close proximity to Algonquin College, Catholic, Public, and French schoolsall within a 45 minute drive * Residents will enjoy access to Riverside Park & Beach, Pembrokes Waterfront Boardwalk, and over 24 public parks spanning 140+ acres * Major destinations such as Algonquin Park and Bell Rapids are just over an hour away * PROPERTY FEATURES: 5 entrances from Drive-In Road and 1 entrance from Heather Street W, offering multiple access points for future development. * Two concept plans attached for reference:- (a) Development on the well & septic (b) Development on municipal water & sewer * Municipal services, including water and sewer, are nearby * Natural gas, hydro, telephone, cable, and high-speed internet are available at the lot line * Strategically located in a region with rising housing demand and lower property taxes, this is a rare and highly desirable opportunity * Opportunities like this are rare * Dont miss your chance to secure this high-potential development site! (id:50886)
Property Details
| MLS® Number | X12236349 |
| Property Type | Vacant Land |
| Community Name | 531 - Laurentian Valley |
| Amenities Near By | Place Of Worship, Marina |
| Community Features | School Bus, Community Centre |
| Features | Wooded Area, Irregular Lot Size |
Building
Land
| Acreage | Yes |
| Land Amenities | Place Of Worship, Marina |
| Sewer | Septic System |
| Size Depth | 636 Ft ,8 In |
| Size Frontage | 2270 Ft ,5 In |
| Size Irregular | 2270.45 X 636.67 Ft |
| Size Total Text | 2270.45 X 636.67 Ft|25 - 50 Acres |
| Surface Water | River/stream |
| Zoning Description | Res-a |
Utilities
| Cable | Available |
| Electricity | Available |
Contact Us
Contact us for more information
Navneet Singh Bhasin
Broker
(905) 872-2682
www.youtube.com/embed/Sk_wAh4xg_I
www.teamnav.ca/
www.facebook.com/NavneetBhasinTeamNav
twitter.com/NavneetSBhasin
www.linkedin.com/in/Navneet-Bhasin-Team-Nav
(866) 530-7737













