223-227 Mary Street Niagara-On-The-Lake, Ontario L0S 1J0
$1
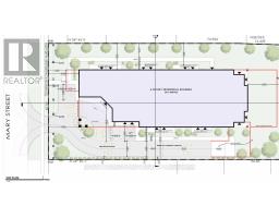
Introducing a rare development opportunity in one of Canada's most prestigious communities. Located at 223-227 Mary Street, this 1.026-acre site is zoned with site-specific multi-residential zoning in place for a 41-unit, 4-storey apartment building making it an opportunity for developers and investors seeking a position in this historic town. Ideally situated just a short walk from Niagara-on-the-Lake's vibrant Old Town, this property offers the perfect balance of small-town charm and development potential. The groundwork is laid for a striking, thoughtfully designed residential building that caters to strong demand for luxury rentals or condominiums in the area. Walking distance to shops, restaurants, wineries, and the Shaw Festival. Municipal services available on site. High-demand market with limited future development supply. Whether you're a seasoned builder or a forward-thinking investor, this is a rare chance to shape the future of Niagara-on-the-Lakes residential landscape. Opportunities of this scale, readiness, and location are exceedingly limited. Development site in Old Town. (id:50886)
Property Details
| MLS® Number | X12464816 |
| Property Type | Vacant Land |
| Community Name | 101 - Town |
Building
Land
| Acreage | No |
| Size Depth | 298 Ft ,7 In |
| Size Frontage | 150 Ft |
| Size Irregular | 150.06 X 298.63 Ft |
| Size Total Text | 150.06 X 298.63 Ft|1/2 - 1.99 Acres |
| Zoning Description | Rm1-h |
Utilities
| Cable | Available |
| Electricity | Installed |
| Sewer | Installed |
https://www.realtor.ca/real-estate/28995185/223-227-mary-street-niagara-on-the-lake-town-101-town
Contact Us
Contact us for more information
Jesse Mason
Salesperson
4850 Dorchester Road #b
Niagara Falls, Ontario L2E 6N9
(905) 357-3000
www.nrcrealty.ca/



























