2259 Concession 10 Road Ramara, Ontario L0K 2B0
$209,900
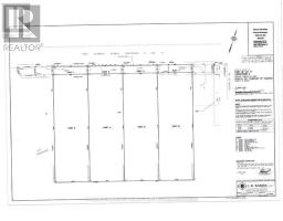
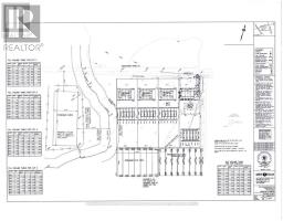
Your "Ready-to-Build" Rural Escape! Choose from three (or purchase all!) newly severed, almost one-acre lots (0.995 acres) in Udney, Ramara. These parcels have all approvals from Ramara Township and Lake Simcoe Region Conservation Authority, ensuring a smooth building process. We've prepped the sites with all required fill for drainage, plus installed culverts and driveways. Enjoy the convenience of paved Concession 10 Ramara, with easy access to major highways, only 10 minutes to Orillia, and an hour's drive to Toronto. **The seller is willing to consider a Vendor Take-Back (VTB) agreement for a term of one year, offering a unique financing solution to qualified buyers.** (id:50886)
Property Details
| MLS® Number | S12192615 |
| Property Type | Vacant Land |
| Community Name | Rural Ramara |
| Easement | Easement |
| Features | Level |
Building
Parking
| No Garage |
Land
| Acreage | No |
| Size Depth | 377 Ft ,3 In |
| Size Frontage | 114 Ft ,9 In |
| Size Irregular | 114.83 X 377.3 Ft ; 377.34 X 114.83 X 377.33 X 114.83 |
| Size Total Text | 114.83 X 377.3 Ft ; 377.34 X 114.83 X 377.33 X 114.83|1/2 - 1.99 Acres |
| Zoning Description | Hamlet/ag |
Utilities
| Cable | Available |
| Electricity | Available |
https://www.realtor.ca/real-estate/28408416/2259-concession-10-road-ramara-rural-ramara
Contact Us
Contact us for more information
Jason Phillip Schlegel
Salesperson
www.jasonschlegelrealestate.com/
www.facebook.com/Muskoka.OrilliaRealEstate
284 Dunlop Street West, 100051
Barrie, Ontario L4N 1B9
(705) 722-8191





















