2341 Crewson Court Cornwall, Ontario K6H 0H9

4 Bedroom 3 Bathroom 1,100 - 1,500 ft2
Bungalow Central Air Conditioning Forced Air

$689,900

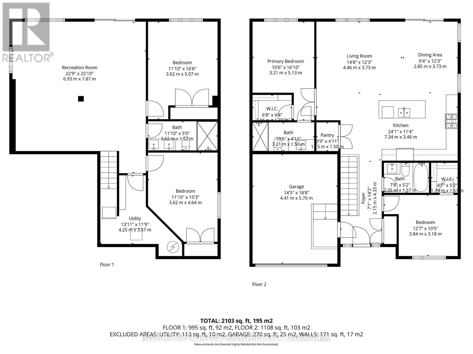
A home with 4 bedrooms, 3 full bathrooms, a walk out basement, a fully fenced rear yard, an attached garage, and amazing curb appeal - a rare find in Cornwall's desirable Eastridge neighbourhood! This 2022 built home truly has it all. From the practical open-concept layout featuring a large kitchen island, ample natural light, main floor laundry, and a spacious primary bedroom suite with walk-in closet and 3-piece ensuite there is nothing missing from this amazing property. The main floor of this home features 2 bedrooms, and 2 full bathrooms, as well as a wide open kitchen / living / dining room area and direct access to the elevated rear deck - a perfect place to spend summer evenings with a refreshment! The fully finished lower level of this home hosts walk-out access to the fenced rear yard, a large family/living area, 2 additional bedrooms, a full 3-piece bathroom. This is a perfect bonus space or could offer the opportunity for multi-generational living. Eastridge is located just minutes from the bike path, from trails and the St Lawrence River, and from all the amenities Cornwall has to offer. Don't miss your chance at this well kept home! As per form 244 Seller requires 24h irrevocable on all offers. (id:50886)

Property Details

MLS® Number X12507690
Property Type Single Family
Community Name 717 - Cornwall
Amenities Near By Public Transit
Features Sloping
Parking Space Total 3
Structure Deck, Patio(s)

Building

Bathroom Total 3
Bedrooms Above Ground 2
Bedrooms Below Ground 2
Bedrooms Total 4
Appliances Central Vacuum
Architectural Style Bungalow
Basement Features Walk Out
Basement Type Full
Construction Style Attachment Detached
Cooling Type Central Air Conditioning
Exterior Finish Stone, Vinyl Siding
Foundation Type Poured Concrete
Heating Fuel Natural Gas
Heating Type Forced Air
Stories Total 1
Size Interior 1,100 - 1,500 Ft2
Type House
Utility Water Municipal Water

Parking

Attached Garage
Garage

Land

Acreage No
Fence Type Fenced Yard
Land Amenities Public Transit
Sewer Sanitary Sewer
Size Depth 114 Ft
Size Frontage 49 Ft
Size Irregular 49 X 114 Ft
Size Total Text 49 X 114 Ft

Utilities

Electricity Installed
Sewer Installed

https://www.realtor.ca/real-estate/29065287/2341-crewson-court-cornwall-717-cornwall

Contact Us

Contact us for more information

Generating Captcha

Garret Munro
Salesperson

(613) 551-5588

RE/MAX Affiliates Marquis Ltd.
649 Second St E
Cornwall, Ontario K6H 1Z7

(613) 938-8100
(613) 938-3295

Alan Mclaughlin-Wheeler
Salesperson

(613) 936-7044

RE/MAX Affiliates Marquis Ltd.
649 Second St E
Cornwall, Ontario K6H 1Z7

(613) 938-8100
(613) 938-3295

Your Favourites

 

No Favourites Found