2878 County Road 15 Prince Edward County, Ontario K0K 2T0
$549,900
Looking for your own slice of paradise in Prince Edward County? This established 99-acre property offers a rare opportunity to own a private retreat complete with an existing dwelling, 200 amp hydro service, well, and septic. The functional home features a wraparound porch, open kitchen, loft, bedroom, and bathroom with laundry hook-ups. A large barn provides ample storage for recreational vehicles or equipment. Explore a network of trails that wind through open fields, mature forest, and scenic elevations. With multiple existing tree stands, this property is perfect for outdoor enthusiasts. (id:50886)
Property Details
| MLS® Number | X12474149 |
| Property Type | Single Family |
| Community Name | Sophiasburg Ward |
| Features | Wooded Area, Rolling, Open Space |
| Parking Space Total | 10 |
| Structure | Deck, Porch, Barn |
Building
| Bathroom Total | 1 |
| Bedrooms Above Ground | 1 |
| Bedrooms Total | 1 |
| Appliances | Water Heater, Stove, Refrigerator |
| Basement Type | None |
| Construction Style Attachment | Detached |
| Cooling Type | None |
| Exterior Finish | Steel |
| Fireplace Present | Yes |
| Fireplace Total | 1 |
| Fireplace Type | Woodstove |
| Foundation Type | Slab |
| Heating Fuel | Electric |
| Heating Type | Baseboard Heaters |
| Stories Total | 2 |
| Size Interior | 0 - 699 Ft2 |
| Type | House |
| Utility Water | Dug Well |
Parking
| No Garage |
Land
| Access Type | Public Road |
| Acreage | Yes |
| Sewer | Septic System |
| Size Depth | 6292 Ft |
| Size Frontage | 350 Ft |
| Size Irregular | 350 X 6292 Ft |
| Size Total Text | 350 X 6292 Ft|50 - 100 Acres |
| Surface Water | Lake/pond |
| Zoning Description | Ru3 |
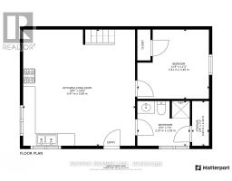
Rooms
| Level | Type | Length | Width | Dimensions |
|---|---|---|---|---|
| Main Level | Kitchen | 5.47 m | 5.69 m | 5.47 m x 5.69 m |
| Main Level | Bedroom | 3.51 m | 3.4 m | 3.51 m x 3.4 m |
| Main Level | Bathroom | 2.57 m | 2.2 m | 2.57 m x 2.2 m |
Utilities
| Cable | Available |
| Electricity | Installed |
| Wireless | Available |
| Electricity Connected | Connected |
Contact Us
Contact us for more information
Joe Kehoe
Salesperson
kehoerealestate.com/
www.facebook.com/KehoeRE
www.linkedin.com/in/joseph-kehoe-545453103/?originalSubdomain=ca
(613) 969-9907
(613) 969-4447
www.remaxquinte.com/









































































