328 Cedar Avenue Meaford, Ontario N4L 1W5
$3,750 Monthly
***SKI SEASON RENTAL***Charming seasonal retreat perfectly situated minutes from Meaford's shops, trails, and the world-class ski clubs of Georgian Bay. This cozy getaway is designed for comfort, featuring warm, inviting living spaces, modern amenities, and a private hot tub. It's the ideal spot to unwind after a day on the slopes. Enjoy a well-equipped kitchen, spacious bedrooms, ample parking, and a layout that's perfect for families or couple's seeking a relaxing winter escape. With its serene setting, thoughtful updates, and close proximity to skiing, dining, and waterfront views, this home offers the perfect base for a memorable seasonal stay. (id:50886)
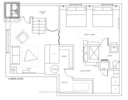
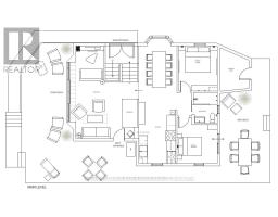
Property Details
| MLS® Number | X12628530 |
| Property Type | Single Family |
| Community Name | Meaford |
| Amenities Near By | Beach |
| Features | Wooded Area, Carpet Free |
| Parking Space Total | 6 |
| View Type | Lake View |
Building
| Bathroom Total | 2 |
| Bedrooms Above Ground | 2 |
| Bedrooms Below Ground | 1 |
| Bedrooms Total | 3 |
| Appliances | Range |
| Architectural Style | Raised Bungalow |
| Basement Development | Finished |
| Basement Type | Full (finished) |
| Construction Style Attachment | Detached |
| Cooling Type | Central Air Conditioning |
| Exterior Finish | Brick, Vinyl Siding |
| Fireplace Present | Yes |
| Fireplace Total | 2 |
| Foundation Type | Block |
| Heating Fuel | Propane |
| Heating Type | Forced Air |
| Stories Total | 1 |
| Size Interior | 1,100 - 1,500 Ft2 |
| Type | House |
| Utility Water | Drilled Well |
Parking
| Garage |
Land
| Acreage | No |
| Land Amenities | Beach |
| Sewer | Septic System |
| Size Frontage | 48 Ft ,7 In |
| Size Irregular | 48.6 Ft |
| Size Total Text | 48.6 Ft |
| Surface Water | Lake/pond |
Utilities
| Cable | Installed |
| Electricity | Installed |
https://www.realtor.ca/real-estate/29181452/328-cedar-avenue-meaford-meaford
Contact Us
Contact us for more information
Allyson Dublack
Broker
(705) 720-2200
(705) 733-2200
Ryan Hawes
Salesperson
(705) 720-2200
(705) 733-2200









































