334 Queen Elizabeth Drive Ottawa, Ontario K1S 3M8
$899,000
A distinguished duplex with a white stucco façade and red-tiled roof, this residence reflects the refined elegance of Spanish-inspired Georgian architecture. Set along the serene waters of the Rideau Canal, it offers a rare connection to Ottawa's rich history and natural beauty. Perfectly positioned in the heart of the Glebe, just steps from downtown. It balances urban vibrancy with peaceful surroundings. While the home requires significant renovation, its solid structure and timeless character present an exceptional opportunity to restore and reimagine a true architectural gem. Whether enjoying walks along the canal, browsing nearby shops, or taking in local culture, this property offers a blend of heritage and potential that is rarely found in today's market. Priced to sell. OPEN HOUSE SUNDAY NOV 9, 2pm-4pm (id:50886)
Property Details
| MLS® Number | X12502138 |
| Property Type | Multi-family |
| Community Name | 4402 - Glebe |
| Equipment Type | Water Heater |
| Features | Irregular Lot Size |
| Parking Space Total | 1 |
| Rental Equipment Type | Water Heater |
| View Type | View Of Water |
Building
| Bathroom Total | 3 |
| Bedrooms Above Ground | 3 |
| Bedrooms Total | 3 |
| Amenities | Fireplace(s) |
| Appliances | Range, Water Heater, Cooktop, Dishwasher, Dryer, Oven, Two Washers, Window Coverings, Two Refrigerators |
| Basement Development | Finished |
| Basement Type | Full (finished) |
| Cooling Type | Central Air Conditioning |
| Exterior Finish | Stucco |
| Fireplace Present | Yes |
| Fireplace Total | 2 |
| Foundation Type | Poured Concrete |
| Heating Fuel | Natural Gas |
| Heating Type | Radiant Heat |
| Stories Total | 2 |
| Size Interior | 1,100 - 1,500 Ft2 |
| Type | Duplex |
| Utility Water | Municipal Water |
Parking
| No Garage |
Land
| Acreage | No |
| Sewer | Sanitary Sewer |
| Size Depth | 52 Ft ,7 In |
| Size Frontage | 42 Ft ,4 In |
| Size Irregular | 42.4 X 52.6 Ft |
| Size Total Text | 42.4 X 52.6 Ft |
| Zoning Description | R3q (1474) |
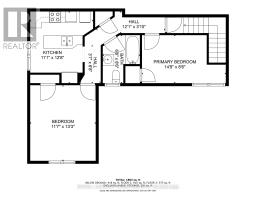
Rooms
| Level | Type | Length | Width | Dimensions |
|---|---|---|---|---|
| Second Level | Kitchen | 3.861 m | 3.378 m | 3.861 m x 3.378 m |
| Second Level | Bedroom | 4.496 m | 2.591 m | 4.496 m x 2.591 m |
| Second Level | Bedroom | 4.039 m | 3.531 m | 4.039 m x 3.531 m |
| Second Level | Bathroom | 2.591 m | 1.981 m | 2.591 m x 1.981 m |
| Lower Level | Utility Room | 5.334 m | 4.877 m | 5.334 m x 4.877 m |
| Lower Level | Laundry Room | 3.531 m | 3.023 m | 3.531 m x 3.023 m |
| Lower Level | Recreational, Games Room | 4.953 m | 4.013 m | 4.953 m x 4.013 m |
| Main Level | Living Room | 4.978 m | 4.064 m | 4.978 m x 4.064 m |
| Main Level | Dining Room | 4.064 m | 3.683 m | 4.064 m x 3.683 m |
| Main Level | Kitchen | 3.531 m | 2.515 m | 3.531 m x 2.515 m |
| Main Level | Bedroom | 3.251 m | 2.769 m | 3.251 m x 2.769 m |
| Main Level | Bathroom | 2.769 m | 1.575 m | 2.769 m x 1.575 m |
https://www.realtor.ca/real-estate/29059319/334-queen-elizabeth-drive-ottawa-4402-glebe
Contact Us
Contact us for more information
Abigail Lindsay
Salesperson
thelindsayteam.ca/
www.facebook.com/thelindsayteam/
1723 Carling Avenue, Suite 1
Ottawa, Ontario K2A 1C8
(613) 725-1171
(613) 725-3323
www.teamrealty.ca/
John Lindsay
Salesperson
thelindsayteam.ca/
www.facebook.com/thelindsayteam/
1723 Carling Avenue, Suite 1
Ottawa, Ontario K2A 1C8
(613) 725-1171
(613) 725-3323
www.teamrealty.ca/
Margo Lindsay
Salesperson
thelindsayteam.ca/
1723 Carling Avenue, Suite 1
Ottawa, Ontario K2A 1C8
(613) 725-1171
(613) 725-3323
www.teamrealty.ca/







































































