351 Humphrey Street Hamilton, Ontario L0R 2H1
$4,500 Monthly
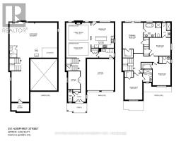
This stunning property built by Green Park is nestled on a rare and highly desirable ravine lot, offering an exceptional living experience. Spanning over 3,000 square feet, the home boasts soaring 9-foot ceilings, california shutters, and an abundance of windows that flood the space with natural light. Recently refreshed with a new coat of paint and entirely free of carpeting, the residence features new elegant laminate flooring throughout. The expansive kitchen is a chef's dream, complete with a generous island and high-end stainless steel appliances, perfect for both cooking and entertaining. The convenience of main floor laundry adds to the home's functionality. Each of the spacious bedrooms is equipped with its own private ensuite, ensuring comfort and privacy for all. The primary suite serves as a personal retreat, featuring dual walk-in closets and a luxurious spa-like ensuite that invites relaxation. The clean, unfinished walk-out basement presents a blank canvas, ready for your creative vision. Outside, the backyard offers a serene, Muskoka-like setting, ideal for quiet moments and enjoying the picturesque views of the ravine. Located on a family-friendly street, this home provides quick access to parks, green spaces, and a wealth of amenities. With nothing left to do but move in and relish the lifestyle, this property is truly a gem. (id:50886)
Property Details
| MLS® Number | X12527520 |
| Property Type | Single Family |
| Community Name | Waterdown |
| Amenities Near By | Golf Nearby, Park, Public Transit, Schools |
| Community Features | Community Centre |
| Equipment Type | Water Heater |
| Features | Ravine |
| Parking Space Total | 6 |
| Rental Equipment Type | Water Heater |
Building
| Bathroom Total | 5 |
| Bedrooms Above Ground | 4 |
| Bedrooms Total | 4 |
| Age | 6 To 15 Years |
| Amenities | Fireplace(s) |
| Appliances | Dishwasher, Dryer, Garage Door Opener, Microwave, Stove, Washer, Refrigerator |
| Basement Development | Unfinished |
| Basement Features | Walk Out |
| Basement Type | N/a (unfinished), N/a |
| Construction Style Attachment | Detached |
| Cooling Type | Central Air Conditioning |
| Exterior Finish | Stone, Stucco |
| Fireplace Present | Yes |
| Fireplace Total | 1 |
| Flooring Type | Ceramic, Laminate |
| Foundation Type | Poured Concrete |
| Half Bath Total | 1 |
| Heating Fuel | Natural Gas |
| Heating Type | Forced Air |
| Stories Total | 2 |
| Size Interior | 3,000 - 3,500 Ft2 |
| Type | House |
| Utility Water | Municipal Water |
Parking
| Attached Garage | |
| Garage |
Land
| Acreage | No |
| Land Amenities | Golf Nearby, Park, Public Transit, Schools |
| Sewer | Sanitary Sewer |
| Size Depth | 106 Ft ,1 In |
| Size Frontage | 41 Ft |
| Size Irregular | 41 X 106.1 Ft |
| Size Total Text | 41 X 106.1 Ft |
Rooms
| Level | Type | Length | Width | Dimensions |
|---|---|---|---|---|
| Second Level | Primary Bedroom | 5.48 m | 4.31 m | 5.48 m x 4.31 m |
| Second Level | Bedroom 2 | 4.41 m | 3.81 m | 4.41 m x 3.81 m |
| Second Level | Bedroom 3 | 4.49 m | 3.75 m | 4.49 m x 3.75 m |
| Second Level | Bedroom 4 | 4.97 m | 3.7 m | 4.97 m x 3.7 m |
| Main Level | Kitchen | 4.74 m | 2.51 m | 4.74 m x 2.51 m |
| Main Level | Eating Area | 4.74 m | 2.79 m | 4.74 m x 2.79 m |
| Main Level | Dining Room | 5.18 m | 3.35 m | 5.18 m x 3.35 m |
| Main Level | Living Room | 5.18 m | 4.01 m | 5.18 m x 4.01 m |
| Main Level | Office | 3.65 m | 2.54 m | 3.65 m x 2.54 m |
https://www.realtor.ca/real-estate/29086099/351-humphrey-street-hamilton-waterdown-waterdown
Contact Us
Contact us for more information
Jamie Alves
Salesperson
www.jamiealves.com/
www.facebook.com/JamieAlvesRealtor
twitter.com/AlvesJamie
ca.linkedin.com/pub/jamie-alves/21/422/379
3643 Cawthra Rd.,ste. 101
Mississauga, Ontario L5A 2Y4
(905) 848-9800
(905) 848-9803
Jeffrey Alves
Salesperson
(647) 678-0171
www.jamiealves.com/
www.facebook.com/Jeffrey-Alves-Sales-Representative-205867526610702/
twitter.com/jeffalves23
ca.linkedin.com/pub/jeffrey-alves/b8/118/3a7
3643 Cawthra Rd.,ste. 101
Mississauga, Ontario L5A 2Y4
(905) 848-9800
(905) 848-9803



































































































