357 James Street Delhi, Ontario N4B 2B6
$499,900
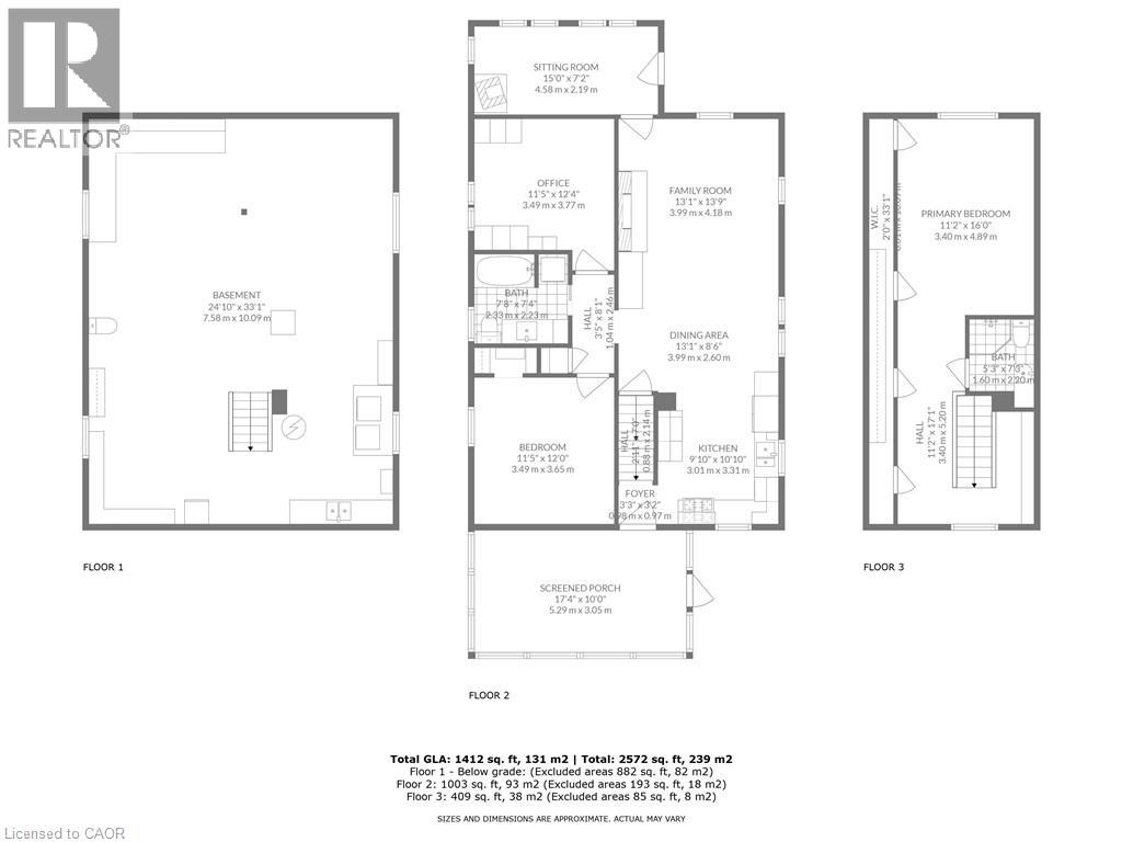
Charming, Versatile Home in a Prime Location! Welcome to this inviting home situated in a convenient neighborhood, just a short walk to schools, parks, and shopping. Perfect for families, professionals, or anyone looking for comfort and flexibility in a great location. Step inside to a bright, open-concept main floor that effortlessly connects the kitchen, dining, and living spaces, ideal for everyday living and entertaining. Two comfortable bedrooms and a full bathroom complete the main level, along with a cozy screened-in front porch that flows into a heated, fully covered porch. You'll also love the spacious three-season porch overlooking the backyard, great for relaxing or hosting. Upstairs features a beautifully finished open-concept area with its own 3-piece bathroom, making it a perfect primary suite, guest retreat, or home office. The clean, well-maintained basement provides excellent storage and future development potential. Outside, the nearly fully fenced yard offers privacy and space, with just a small section needed to complete it if desired. A detached two-car garage includes bonus storage and dedicated workshop space at the back and side, ideal for hobbyists, DIYers, or anyone needing extra room. This property is a must-see, offering comfort, space, and incredible value in a sought-after location. Don’t miss your chance to make it yours! (id:50886)
Property Details
| MLS® Number | 40773458 |
| Property Type | Single Family |
| Amenities Near By | Park, Playground, Schools, Shopping |
| Parking Space Total | 8 |
Building
| Bathroom Total | 2 |
| Bedrooms Above Ground | 3 |
| Bedrooms Total | 3 |
| Appliances | Central Vacuum |
| Basement Development | Unfinished |
| Basement Type | Full (unfinished) |
| Construction Style Attachment | Detached |
| Cooling Type | Central Air Conditioning |
| Exterior Finish | Aluminum Siding |
| Heating Fuel | Natural Gas |
| Heating Type | Forced Air |
| Stories Total | 2 |
| Size Interior | 1,700 Ft2 |
| Type | House |
| Utility Water | Municipal Water |
Parking
| Detached Garage |
Land
| Acreage | No |
| Land Amenities | Park, Playground, Schools, Shopping |
| Sewer | Municipal Sewage System |
| Size Frontage | 50 Ft |
| Size Total Text | Under 1/2 Acre |
| Zoning Description | R1 |
Rooms
| Level | Type | Length | Width | Dimensions |
|---|---|---|---|---|
| Second Level | 3pc Bathroom | 5'3'' x 7'3'' | ||
| Second Level | Other | 11'2'' x 17'1'' | ||
| Second Level | Bedroom | 11'2'' x 16'0'' | ||
| Basement | Storage | 24'10'' x 33'1'' | ||
| Main Level | 4pc Bathroom | 7'8'' x 7'4'' | ||
| Main Level | Primary Bedroom | 11'5'' x 12'0'' | ||
| Main Level | Bedroom | 11'5'' x 12'4'' | ||
| Main Level | Porch | 15'0'' x 7'2'' | ||
| Main Level | Living Room | 13'1'' x 13'9'' | ||
| Main Level | Dining Room | 13'1'' x 8'6'' | ||
| Main Level | Kitchen | 9'10'' x 10'10'' | ||
| Main Level | Porch | 17'4'' x 10'0'' |
https://www.realtor.ca/real-estate/28910172/357-james-street-delhi
Contact Us
Contact us for more information
Paul Van Londersele
Broker of Record
(519) 582-8096
www.vanlondersele.ca/
www.facebook.com/vanlonderselerealestatebrokerage/
www.linkedin.com/in/paul-van-londersele-8594531b
www.instagram.com/paulvanlondersele/?hl=en
343 Windham Rd 12, Rr#7
Simcoe, Ontario N3Y 4K6
(519) 428-5763
(519) 582-8096
www.vanlondersele.ca/























































































