39 Lilac Lane Thorold, Ontario L0S 1K0

3 Bedroom 3 Bathroom 1,100 - 1,500 ft2
Central Air Conditioning Forced Air

$2,350 Monthly

Welcome to this bright and modern 3-bedroom, 3-bathroom townhome offering stylish living and functional design. The open-concept main floor features a spacious kitchen with extended cabinetry, stainless-steel appliances, large island with double sink, and plenty of counter space - ideal for meal prep and entertaining. The adjoining living and dining areas are filled with natural light from oversized windows and a sliding door that opens to a private balcony, perfect for relaxing outdoors.Upstairs you'll find three comfortable bedrooms including a well-appointed primary suite with ample closet space and ensuite access. Neutral finishes, upgraded flooring, and contemporary fixtures throughout give this home a fresh, move-in-ready feel.The lower level provides interior garage access and a versatile entry space suitable for storage or a small office nook. Parking for two vehicles (garage + driveway).A clean, modern rental in a growing community - ready for immediate occupancy. (id:50886)

Property Details

MLS® Number X12508484
Property Type Single Family
Community Name 562 - Hurricane/Merrittville
Features In Suite Laundry
Parking Space Total 2

Building

Bathroom Total 3
Bedrooms Above Ground 3
Bedrooms Total 3
Appliances Dishwasher, Dryer, Garage Door Opener, Washer, Refrigerator
Basement Type None
Construction Style Attachment Attached
Cooling Type Central Air Conditioning
Exterior Finish Vinyl Siding
Foundation Type Concrete
Half Bath Total 1
Heating Fuel Natural Gas
Heating Type Forced Air
Stories Total 3
Size Interior 1,100 - 1,500 Ft2
Type Row / Townhouse
Utility Water Municipal Water

Parking

Attached Garage
Garage

Land

Acreage No
Sewer Sanitary Sewer

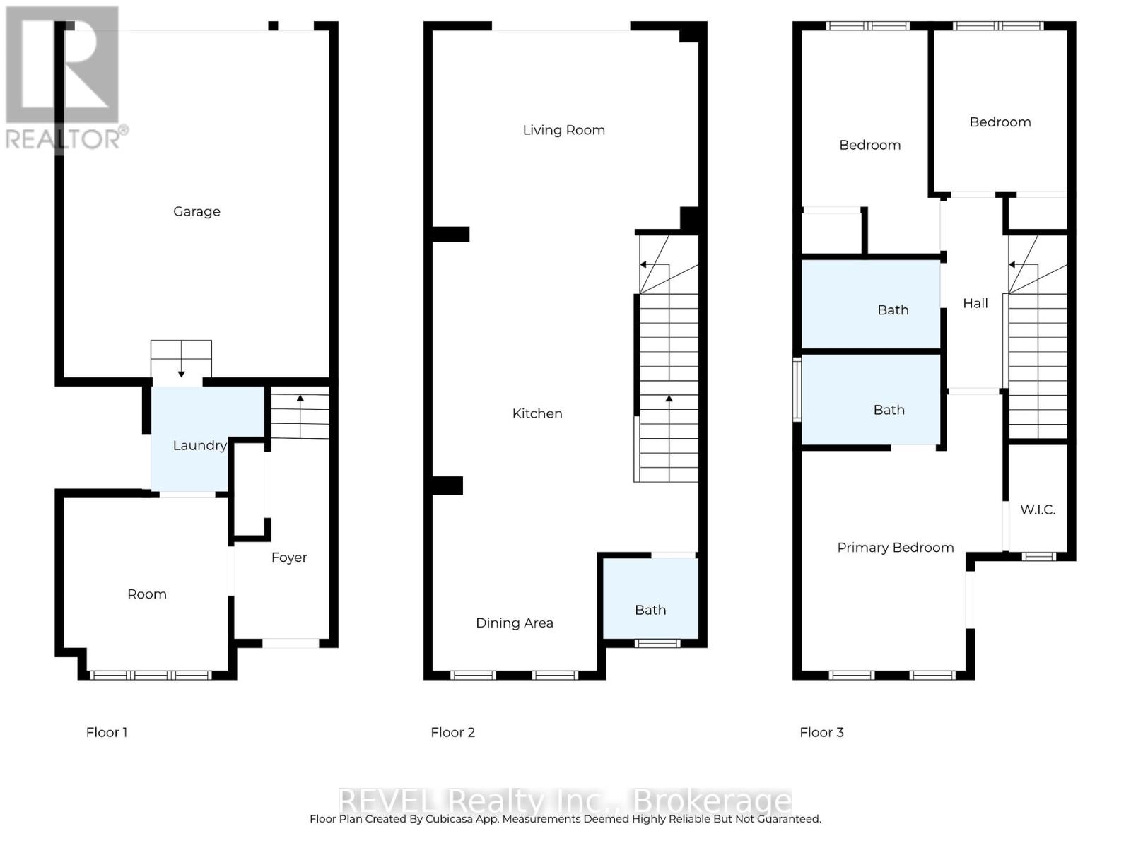
Rooms

Level Type Dimensions
Second Level Living Room 4.64 m x 3.38 m
Third Level Kitchen 4.64 m x 5.66 m
Third Level Dining Room 2.89 m x 2.08 m
Third Level Bedroom 2.43 m x 2.33 m
Third Level Bedroom 2.33 m x 2.81 m
Third Level Primary Bedroom 3.53 m x 4.85 m
Main Level Laundry Room 1.98 m x 1.85 m
Main Level Other 2.89 m x 3.04 m
Main Level Foyer 1.67 m x 4.42 m

https://www.realtor.ca/real-estate/29065867/39-lilac-lane-thorold-hurricanemerrittville-562-hurricanemerrittville

Contact Us

Contact us for more information

Generating Captcha

Andrew Perrie
Salesperson

(905) 380-1158

Revel Realty Inc., Brokerage
1596 Four Mile Creek Road, Unit 2
Niagara-On-The-Lake, Ontario L0S 1J0

(289) 868-8869
(905) 352-1705
www.revelrealty.ca/

Daiken Edwards
Salesperson

(226) 927-6622

Revel Realty Inc., Brokerage
1596 Four Mile Creek Road, Unit 2
Niagara-On-The-Lake, Ontario L0S 1J0

(289) 868-8869
(905) 352-1705
www.revelrealty.ca/

Your Favourites

 

No Favourites Found