392 William Street Tay, Ontario L0K 2A0
$899,900
Fantastic opportunity on this amazing location and C4-1 zoning permitting may uses for this spacious home on large lot almost an acre in size only steps to Georgian Bay, Tay Shore Trail and Waterfront Park. Currently it is set up as a residence which features: 3 Bedrooms (all with ensuites) * 4 Baths (total) * Large Living / Dining Area with walk out to deck * Large working Kitchen * Main Floor Laundry * Large Full Basement which is partitioned and has 2 Rough-In Baths * Gas Furnace with Central Air * Parking at front and Large paved parking at rear. A few of the permitted uses are: Convenience Store, Restaurant, Laundromat, Garage, Hotel, Motel plus many more. You may consider completing your due diligence to see if a zoning change could allow for Residential detached, semi's, town's or lot severance development would be possible. Approximately 474 feet of frontage on Winfield Dr. All this and located close to Pharmacy - Doctors Office, Grocery, LCBO, Library, Post Office, Cafe, Waterfront Park and Boat Launch. Located in North Simcoe and offering so much to do - boating, fishing, swimming, canoeing, hiking, cycling, hunting, snowmobiling, atving, golfing, skiing and along with theatres, historical tourist attractions and so much more. Only 10 minutes to Midland, 30 minutes to Orillia, 40 minutes to Barrie and 90 minutes from GTA (id:50886)
Property Details
| MLS® Number | S12307715 |
| Property Type | Single Family |
| Community Name | Victoria Harbour |
| Amenities Near By | Golf Nearby, Hospital, Beach, Marina, Place Of Worship |
| Community Features | Community Centre |
| Equipment Type | None |
| Features | Irregular Lot Size, Sloping, Level |
| Parking Space Total | 20 |
| Rental Equipment Type | None |
| Structure | Deck |
| View Type | Lake View |
Building
| Bathroom Total | 3 |
| Bedrooms Above Ground | 3 |
| Bedrooms Total | 3 |
| Appliances | Water Heater, Dishwasher, Dryer, Microwave, Stove, Washer, Refrigerator |
| Architectural Style | Bungalow |
| Basement Development | Unfinished |
| Basement Features | Walk-up |
| Basement Type | N/a, N/a (unfinished) |
| Construction Style Attachment | Detached |
| Cooling Type | Central Air Conditioning |
| Exterior Finish | Wood |
| Flooring Type | Laminate, Tile, Vinyl |
| Foundation Type | Block |
| Half Bath Total | 2 |
| Heating Fuel | Natural Gas |
| Heating Type | Forced Air |
| Stories Total | 1 |
| Size Interior | 1,500 - 2,000 Ft2 |
| Type | House |
| Utility Water | Municipal Water |
Parking
| No Garage |
Land
| Access Type | Year-round Access |
| Acreage | No |
| Land Amenities | Golf Nearby, Hospital, Beach, Marina, Place Of Worship |
| Sewer | Sanitary Sewer |
| Size Depth | 440 Ft |
| Size Frontage | 72 Ft |
| Size Irregular | 72 X 440 Ft ; 108ft X 341ft X 100ft X 72ft X 464 |
| Size Total Text | 72 X 440 Ft ; 108ft X 341ft X 100ft X 72ft X 464|1/2 - 1.99 Acres |
| Zoning Description | C4-1 |
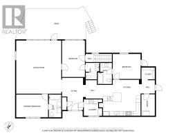
Rooms
| Level | Type | Length | Width | Dimensions |
|---|---|---|---|---|
| Main Level | Foyer | 2.57 m | 4.34 m | 2.57 m x 4.34 m |
| Main Level | Living Room | 5.84 m | 7.49 m | 5.84 m x 7.49 m |
| Main Level | Kitchen | 5.05 m | 4.62 m | 5.05 m x 4.62 m |
| Main Level | Pantry | 2.79 m | 1.65 m | 2.79 m x 1.65 m |
| Main Level | Primary Bedroom | 4.22 m | 3.17 m | 4.22 m x 3.17 m |
| Main Level | Bedroom 2 | 3.05 m | 5.18 m | 3.05 m x 5.18 m |
| Main Level | Bedroom 3 | 3.71 m | 3.35 m | 3.71 m x 3.35 m |
| Main Level | Laundry Room | 2.08 m | 2.21 m | 2.08 m x 2.21 m |
Utilities
| Cable | Available |
| Electricity | Installed |
| Wireless | Available |
| Electricity Connected | Connected |
| Natural Gas Available | Available |
| Sewer | Installed |
https://www.realtor.ca/real-estate/28654404/392-william-street-tay-victoria-harbour-victoria-harbour
Contact Us
Contact us for more information
John Eplett
Broker of Record
www.johneplett.com/
www.facebook.com/JohnEplettRealEstate
twitter.com/johneplett
ca.linkedin.com/pub/john-eplett/3a/ab7/b08
833 King Street
Midland, Ontario L4R 4L1
(705) 526-9366
(705) 526-7120
georgianbayproperties.com/





















































































