3925 Algoma Avenue Innisfil, Ontario L9S 2M4
$1,899,900
Custom-Built Bungalow on Oversized Lot in Prestigious Big Bay Point! Over 2500 sq ft. of main floor with three bedrooms and three bathrooms. Nestled at the quiet dead end of a quaint street, this exceptional property sits on a sprawling, tree-lined lot just minutes from Friday Harbour and two popular golf courses. Surrounded by nature, the mature trees and landscaped yard provide privacy and serenity, while exterior lighting adds an evening touch of elegance. Ideal for luxury buyers, builders, or multi-generational families, this home combines accessibility with opportunity. There's potential to sever the lot for an additional 100' parcel, making this a rare and valuable find for future development or investment. Inside, enjoy barrier-free, one-level living, complete with a garage stair lift, rear ramp to an expansive deck, and a roll-in shower perfect for families with an elderly parent or anyone needing mobility-friendly features. Main floor features 14-foot ceilings, large windows overlooking trees and a formal dining area. Modern white kitchen with gas stove, white updated appliances, and a peninsula extends to a walk-out breakfast area. A partially finished basement offers added living space, featuring a large rec room, den, cantina, and utility room, ideal for guests, hobbies, or future customization. The interlock driveway accommodates multiple vehicles, RVs, or boats. The massive two-car garage has extra space and an inside entry to the home. This turn-key retreat is the ultimate blend of comfort, location, and potential just moments from Lake Simcoe, government dock, trails, and top-tier golf. Whether you're downsizing in style, building your dream, or investing in a coveted neighbourhood, this one has it all. (id:50886)
Property Details
| MLS® Number | N12406633 |
| Property Type | Single Family |
| Community Name | Rural Innisfil |
| Amenities Near By | Beach, Golf Nearby, Marina |
| Equipment Type | Water Heater |
| Features | Cul-de-sac, Wooded Area, Flat Site, Dry, Sump Pump |
| Parking Space Total | 12 |
| Rental Equipment Type | Water Heater |
| Structure | Deck, Shed |
Building
| Bathroom Total | 3 |
| Bedrooms Above Ground | 3 |
| Bedrooms Total | 3 |
| Age | 16 To 30 Years |
| Appliances | Garage Door Opener Remote(s), Central Vacuum, Water Softener |
| Architectural Style | Bungalow |
| Basement Development | Finished |
| Basement Type | Partial, N/a (finished) |
| Construction Style Attachment | Detached |
| Cooling Type | Central Air Conditioning |
| Exterior Finish | Brick |
| Fire Protection | Alarm System |
| Flooring Type | Carpeted, Hardwood |
| Foundation Type | Poured Concrete, Block |
| Half Bath Total | 1 |
| Heating Fuel | Natural Gas |
| Heating Type | Forced Air |
| Stories Total | 1 |
| Size Interior | 2,500 - 3,000 Ft2 |
| Type | House |
| Utility Water | Drilled Well |
Parking
| Attached Garage | |
| Garage | |
| Inside Entry |
Land
| Acreage | No |
| Land Amenities | Beach, Golf Nearby, Marina |
| Landscape Features | Landscaped |
| Sewer | Septic System |
| Size Depth | 150 Ft |
| Size Frontage | 250 Ft |
| Size Irregular | 250 X 150 Ft ; 0.861 Acres |
| Size Total Text | 250 X 150 Ft ; 0.861 Acres|1/2 - 1.99 Acres |
| Zoning Description | R1 |
Rooms
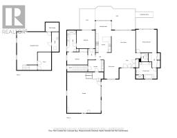
| Level | Type | Length | Width | Dimensions |
|---|---|---|---|---|
| Basement | Den | 3.96 m | 2.98 m | 3.96 m x 2.98 m |
| Basement | Utility Room | 4.35 m | 1.58 m | 4.35 m x 1.58 m |
| Basement | Cold Room | 2.95 m | 2 m | 2.95 m x 2 m |
| Basement | Family Room | 8.41 m | 7.57 m | 8.41 m x 7.57 m |
| Ground Level | Foyer | 4.86 m | 3.28 m | 4.86 m x 3.28 m |
| Ground Level | Bathroom | 4.69 m | 2 m | 4.69 m x 2 m |
| Ground Level | Bathroom | 4.61 m | 3.7 m | 4.61 m x 3.7 m |
| Ground Level | Living Room | 5.36 m | 4.93 m | 5.36 m x 4.93 m |
| Ground Level | Dining Room | 4.2 m | 3.2 m | 4.2 m x 3.2 m |
| Ground Level | Kitchen | 4.83 m | 3.42 m | 4.83 m x 3.42 m |
| Ground Level | Eating Area | 3.42 m | 2.1 m | 3.42 m x 2.1 m |
| Ground Level | Primary Bedroom | 5.1 m | 4.6 m | 5.1 m x 4.6 m |
| Ground Level | Bedroom 2 | 4.1 m | 3.96 m | 4.1 m x 3.96 m |
| Ground Level | Bedroom 3 | 4.53 m | 2.78 m | 4.53 m x 2.78 m |
| Ground Level | Laundry Room | 3.47 m | 2.51 m | 3.47 m x 2.51 m |
Utilities
| Cable | Available |
| Electricity | Installed |
https://www.realtor.ca/real-estate/28869339/3925-algoma-avenue-innisfil-rural-innisfil
Contact Us
Contact us for more information
Igor Vujovic
Broker
isellinnisfil.com/
www.facebook.com/C21IGOR
www.twitter.com/C21IGOR
www.linkedin.com/in/igorvujovic
888 Innisfil Beach Road, 100020
Innisfil, Ontario L9S 2C2
(705) 436-2121
(705) 436-5391
bjrothrealty.c21.ca/

































































































