394 Brookhaven Place London East, Ontario N5Y 5N5
$579,900
Welcome to 394 Brookhaven Place... A Perfect Condo Alternative! A great blend of Space, Style & Location! Tucked away on a peaceful cul-de-sac in London's desirable northeast end, this raised bungalow offers incredible value with 4 spacious bedrooms, 2 full bathrooms, and a convenient 1-car garage. Whether you're a first-time buyer, growing family, or looking for a versatile home with income potential, this one checks all the boxes. Step inside to a bright, open-concept layout that flows seamlessly between the upper and lower levels. The modern kitchen features solid surface countertops, ample cabinetry, and a sleek tile backsplash perfect for both everyday living and entertaining. The upper level boasts 3 generously sized bedrooms and a full bath, while the mostly finished lower level offers outstanding flexibility. Complete with a large bedroom, updated full bath with walk-in shower, and a cozy family room with gas fireplace, its ideal as a potential in-law or granny suite. The plumbed storage/flex room could easily be finished as a kitchenette, creating a fully self-contained space if desired. Recent upgrades include a brand-new front porch with stylish glass railing, fresh concrete entryway, sealed driveway, and epoxy-finished garage floor. Ideally located near top-rated schools, Masonville Mall, Fanshawe College, and the beautiful Fanshawe Conservation Area. With quick access to major bus routes and amenities, this commuter-friendly home makes everyday living a breeze. Don't miss your chance to own this move-in-ready gem in a sought-after neighbourhood! (id:50886)
Property Details
| MLS® Number | X12523952 |
| Property Type | Single Family |
| Community Name | East A |
| Amenities Near By | Public Transit |
| Equipment Type | Water Heater, Water Heater - Tankless |
| Features | Cul-de-sac |
| Parking Space Total | 3 |
| Rental Equipment Type | Water Heater, Water Heater - Tankless |
Building
| Bathroom Total | 2 |
| Bedrooms Above Ground | 3 |
| Bedrooms Below Ground | 1 |
| Bedrooms Total | 4 |
| Age | 16 To 30 Years |
| Amenities | Fireplace(s) |
| Appliances | Garage Door Opener Remote(s), Dishwasher, Dryer, Microwave, Stove, Washer, Refrigerator |
| Architectural Style | Raised Bungalow |
| Basement Development | Partially Finished |
| Basement Type | N/a (partially Finished) |
| Construction Style Attachment | Detached |
| Cooling Type | Central Air Conditioning |
| Exterior Finish | Brick, Vinyl Siding |
| Fireplace Present | Yes |
| Fireplace Total | 1 |
| Foundation Type | Poured Concrete |
| Heating Fuel | Natural Gas |
| Heating Type | Forced Air |
| Stories Total | 1 |
| Size Interior | 700 - 1,100 Ft2 |
| Type | House |
| Utility Water | Municipal Water |
Parking
| Attached Garage | |
| Garage |
Land
| Acreage | No |
| Land Amenities | Public Transit |
| Sewer | Sanitary Sewer |
| Size Depth | 125 Ft |
| Size Frontage | 29 Ft ,6 In |
| Size Irregular | 29.5 X 125 Ft |
| Size Total Text | 29.5 X 125 Ft |
| Zoning Description | R5-3 |
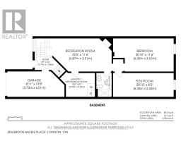
Rooms
| Level | Type | Length | Width | Dimensions |
|---|---|---|---|---|
| Lower Level | Bathroom | 1.64 m | 2.52 m | 1.64 m x 2.52 m |
| Lower Level | Laundry Room | 3.05 m | 2.52 m | 3.05 m x 2.52 m |
| Lower Level | Bedroom 4 | 6.35 m | 3.51 m | 6.35 m x 3.51 m |
| Lower Level | Recreational, Games Room | 6.87 m | 3.51 m | 6.87 m x 3.51 m |
| Lower Level | Other | 6.35 m | 2.52 m | 6.35 m x 2.52 m |
| Main Level | Kitchen | 4.96 m | 3 m | 4.96 m x 3 m |
| Main Level | Foyer | 1.77 m | 1.34 m | 1.77 m x 1.34 m |
| Main Level | Living Room | 3.74 m | 3.68 m | 3.74 m x 3.68 m |
| Main Level | Dining Room | 2.54 m | 3.68 m | 2.54 m x 3.68 m |
| Main Level | Primary Bedroom | 4.21 m | 3.15 m | 4.21 m x 3.15 m |
| Main Level | Bedroom 2 | 2.83 m | 2.83 m | 2.83 m x 2.83 m |
| Main Level | Bedroom 3 | 3.01 m | 2.89 m | 3.01 m x 2.89 m |
| Main Level | Bathroom | 1.51 m | 2.76 m | 1.51 m x 2.76 m |
Utilities
| Cable | Available |
| Electricity | Installed |
| Sewer | Installed |
https://www.realtor.ca/real-estate/29082472/394-brookhaven-place-london-east-east-a-east-a
Contact Us
Contact us for more information
Cindy Monger
Salesperson
(548) 888-2441
thehousemongers.com/
(519) 438-8000
Jeff Monger
Salesperson
(519) 438-8000

































































































