43 Calypso Avenue Springwater, Ontario L0L 1Y3
$1,299,900
Welcome to 43 Calypso Avenue, Midhurst Valley - Springwater's Premier Family-Centric Community. This stunning 3,500 sq.ft. contemporary home blends the perks of new construction with the convenience of move-in readiness. Thoughtfully designed interiors go beyond builder's basics - tasteful décor, upgraded lighting, custom window treatments, and fully fenced yard are already in place. Step into a grand foyer with soaring 11' ceilings and upgraded 12" x 24" tile flooring. A versatile front "flex" room offers endless possibilities - home office, media room, or guest suite. The elegant dining area features a ship-lap accent wall and designer lighting, seamlessly connecting to the open-concept kitchen and family room. The chef's kitchen is a showstopper with extended-height cabinetry, quartz countertops, oversized island, and a Butler's Pantry for extra prep space and storage. The adjacent family room boasts expansive windows and a wood-paneled gas fireplace, creating a warm and inviting hub. Main floor highlights include a stylish 2-pc powder room, mudroom with built-in bench/storage, and direct access to the double garage. Hardwood staircase leads to the upper-level private space, where four spacious bedrooms each enjoy walk-in closets and private ensuites - as well as upper level laundry. The luxurious primary suite evokes resort vibes with a tray ceiling, sitting area, and spa-inspired ensuite featuring a stand-alone soaker tub and glass-walled shower. Situated in Simcoe County - with easy access to key amenities and commuter routes north to cottage country/south to the GTA. Everything a busy household might require is just minutes away - schools, parks, services, big box and boutique shops, fine and casual dining, entertainment, as well as the four season outdoor activities this area is known for - skiing, golf, hiking/biking trails, lake and waterfront seasonal fun! This turnkey home is exceptional in every way, and truly is a move in ready gem! Take a look tod (id:50886)
Property Details
| MLS® Number | S12460684 |
| Property Type | Single Family |
| Community Name | Midhurst |
| Parking Space Total | 4 |
Building
| Bathroom Total | 5 |
| Bedrooms Above Ground | 4 |
| Bedrooms Total | 4 |
| Amenities | Fireplace(s) |
| Basement Type | Full |
| Construction Style Attachment | Detached |
| Cooling Type | Central Air Conditioning |
| Exterior Finish | Brick |
| Fireplace Present | Yes |
| Foundation Type | Concrete |
| Half Bath Total | 1 |
| Heating Fuel | Natural Gas |
| Heating Type | Forced Air |
| Stories Total | 2 |
| Size Interior | 3,500 - 5,000 Ft2 |
| Type | House |
| Utility Water | Municipal Water |
Parking
| Attached Garage | |
| Garage |
Land
| Acreage | No |
| Sewer | Sanitary Sewer |
| Size Depth | 30 M |
| Size Frontage | 13.4 M |
| Size Irregular | 13.4 X 30 M |
| Size Total Text | 13.4 X 30 M |
| Zoning Description | Res |
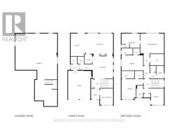
Rooms
| Level | Type | Length | Width | Dimensions |
|---|---|---|---|---|
| Second Level | Bathroom | 3 m | 1.6 m | 3 m x 1.6 m |
| Second Level | Bedroom 3 | 5.3 m | 5 m | 5.3 m x 5 m |
| Second Level | Bathroom | 3 m | 1.6 m | 3 m x 1.6 m |
| Second Level | Bedroom 4 | 5.3 m | 3.6 m | 5.3 m x 3.6 m |
| Second Level | Bathroom | 3 m | 1.6 m | 3 m x 1.6 m |
| Second Level | Laundry Room | 2.7 m | 1.5 m | 2.7 m x 1.5 m |
| Second Level | Bedroom | 7.7 m | 5.8 m | 7.7 m x 5.8 m |
| Second Level | Bathroom | 4.2 m | 3.2 m | 4.2 m x 3.2 m |
| Second Level | Bedroom 2 | 4 m | 4.9 m | 4 m x 4.9 m |
| Main Level | Kitchen | 3.5 m | 5.4 m | 3.5 m x 5.4 m |
| Main Level | Pantry | 2.3 m | 2 m | 2.3 m x 2 m |
| Main Level | Office | 3 m | 3.9 m | 3 m x 3.9 m |
| Main Level | Dining Room | 4.8 m | 5.4 m | 4.8 m x 5.4 m |
| Main Level | Family Room | 5 m | 6.6 m | 5 m x 6.6 m |
| Main Level | Mud Room | 1.91 m | 1.4 m | 1.91 m x 1.4 m |
| Main Level | Bathroom | 1.6 m | 1.73 m | 1.6 m x 1.73 m |
Utilities
| Cable | Available |
| Electricity | Installed |
| Sewer | Installed |
https://www.realtor.ca/real-estate/28985951/43-calypso-avenue-springwater-midhurst-midhurst
Contact Us
Contact us for more information
Scott Woolsey
Salesperson
(705) 722-5246
218 Bayfield St, 100078 & 100431
Barrie, Ontario L4M 3B6
(705) 722-7100
(705) 722-5246
www.remaxchay.com/
Julie Woolsey
Salesperson
218 Bayfield St, 100078 & 100431
Barrie, Ontario L4M 3B6
(705) 722-7100
(705) 722-5246
www.remaxchay.com/



























































































