4424 Sixth Avenue Unit# Bsmt Niagara Falls, Ontario L2E 4T1
$1,500 MonthlyHeat, Electricity, Water
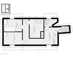
The Perfect Blend Of Comfort And Convenience. This Bsmt Features 2 Beds, 1 (3Pcs) Bath With A Tiled Stand-Up Shower, Storage, And Windows For Natural Light. Utilities Included: Hydro/Electricity, Heat, Water, WiFi (Internet). Appl Included: Fridge, Microwave, Induction Stove W/O/H Exhaust, Washer, Dryer & Sofa Bed. Enjoy A Separate Laundry And Separate Entrance. The Property Includes 1 Private Driveway Parking Spot And A Spacious Backyard Perfect For Summer Relaxation Or BBQs. Close To Schools, Parks, MacBain Community Centre, Niagara Falls, Public Transit & Many More! The Tenant Is Responsible For Snow Shoveling The Stairs And Their Pathway During The Winter. Shovel Is Provided. Floor Plan Attached. (id:50886)
Property Details
| MLS® Number | 40781729 |
| Property Type | Single Family |
| Amenities Near By | Park, Place Of Worship, Public Transit, Schools |
| Parking Space Total | 1 |
Building
| Bathroom Total | 1 |
| Bedrooms Below Ground | 2 |
| Bedrooms Total | 2 |
| Appliances | Dryer, Microwave, Refrigerator, Stove, Washer |
| Architectural Style | 2 Level |
| Basement Development | Finished |
| Basement Type | Full (finished) |
| Construction Style Attachment | Detached |
| Cooling Type | Central Air Conditioning |
| Exterior Finish | Brick, Concrete |
| Fire Protection | Smoke Detectors |
| Foundation Type | Poured Concrete |
| Heating Fuel | Natural Gas |
| Heating Type | Forced Air |
| Stories Total | 2 |
| Size Interior | 473 Ft2 |
| Type | House |
| Utility Water | Municipal Water |
Land
| Access Type | Highway Nearby |
| Acreage | No |
| Land Amenities | Park, Place Of Worship, Public Transit, Schools |
| Sewer | Municipal Sewage System |
| Size Depth | 120 Ft |
| Size Frontage | 39 Ft |
| Size Total Text | Unknown |
| Zoning Description | R2 |
Rooms
| Level | Type | Length | Width | Dimensions |
|---|---|---|---|---|
| Lower Level | Utility Room | 11'3'' x 8'4'' | ||
| Lower Level | Bedroom | 7'4'' x 11'1'' | ||
| Lower Level | Bedroom | 7'5'' x 11'1'' | ||
| Lower Level | Kitchen | 15'2'' x 20'8'' | ||
| Lower Level | 3pc Bathroom | 4'7'' x 7'8'' |
https://www.realtor.ca/real-estate/29024469/4424-sixth-avenue-unit-bsmt-niagara-falls
Contact Us
Contact us for more information
Kris Buzmion
Salesperson
msha.ke/krisbuzmion
cdn.agentbook.com/accounts/undefined/assets/agent-profile/logo/20251024T162802408Z043469.jpg?timestamp=1761323282530
14 30 Eglinton Avenue West Unit 451
Mississauga, Ontario L5R 0C1
(866) 530-7737
www.exprealty.ca/







































