453157 Grey Road 2 Grey Highlands, Ontario N0C 1L0
$799,999
Perfect country property! This spacious and stunning 6-bdrms, 3-bthrms raised bungalow on 1.5-acres offers the perfect blend of comfort, convenience, and income potential.Step inside from the covered front porch to find a welcoming foyer complete with a convenient closet. The home features new vinyl plank flooring and large windows throughout, flooding the space with natural light and accentuating its airy ambiance.The heart of the home lies in the pine living room, boasting a cathedral ceiling and a cozy wood stove insert, perfect for cozy evenings. Galley kitchen with oak cupboards and a bright 3-panel breakfast/dining nook. 4 above grade bdrms, including a primary suite with a walk-in closet and a 4-piece ensuite featuring a jet tub and corner shower. A hallway with a main floor 4-piece bath, two linen closets, and main floor laundry with a double closet adds to the convenience.The fully finished basement suite is complete with its own kitchen, dining area, living room/rec room, office/den, cold room, utility room, 3pc bthrm, & two bdrms. Whether you're looking for additional living space, a guest suite, in-law apartment, or rental income opportunity, this home offers everything you need. Attached 2-car garage & a second detached 2-car garage/workshop with hydro. Generac generator, HRV system, & aluminum roof.Outside, enjoy the great patio and back deck, perfect for relaxing or entertaining against the backdrop of the serene landscape with the outer lying Osprey Wetland Conservation Lands.Located in a prime spot surrounded by natural beauty with plenty of birds and wildlife and recreational opportunities for every season, this home offers the ultimate country lifestyle. Explore nearby conservation areas, fishing, parks, skiing resorts, and golf courses. Just a 10-minute drive to Dundalk and 25 mins to Markdale, 15 mins to Lake Eugenia, 30-40 mins to Georgian Bay, enjoy the tranquility of rural living without sacrificing convenience. (id:50886)
Property Details
| MLS® Number | X12466091 |
| Property Type | Single Family |
| Community Name | Grey Highlands |
| Amenities Near By | Golf Nearby |
| Community Features | School Bus, Community Centre |
| Equipment Type | Water Heater, Propane Tank, Water Softener |
| Features | Wooded Area, Conservation/green Belt, Level, Sump Pump |
| Parking Space Total | 10 |
| Rental Equipment Type | Water Heater, Propane Tank, Water Softener |
| Structure | Deck, Porch |
Building
| Bathroom Total | 3 |
| Bedrooms Above Ground | 4 |
| Bedrooms Below Ground | 2 |
| Bedrooms Total | 6 |
| Age | 31 To 50 Years |
| Amenities | Fireplace(s) |
| Appliances | Water Purifier, Dryer, Stove, Washer, Refrigerator |
| Architectural Style | Raised Bungalow |
| Basement Development | Finished |
| Basement Features | Walk-up |
| Basement Type | N/a, N/a (finished) |
| Construction Style Attachment | Detached |
| Cooling Type | None, Air Exchanger, Ventilation System |
| Exterior Finish | Vinyl Siding, Brick |
| Fireplace Present | Yes |
| Fireplace Total | 1 |
| Foundation Type | Unknown |
| Heating Fuel | Oil |
| Heating Type | Forced Air |
| Stories Total | 1 |
| Size Interior | 2,000 - 2,500 Ft2 |
| Type | House |
| Utility Water | Drilled Well |
Parking
| Attached Garage | |
| Garage | |
| R V |
Land
| Acreage | No |
| Land Amenities | Golf Nearby |
| Sewer | Septic System |
| Size Depth | 204 Ft ,8 In |
| Size Frontage | 332 Ft ,8 In |
| Size Irregular | 332.7 X 204.7 Ft |
| Size Total Text | 332.7 X 204.7 Ft|1/2 - 1.99 Acres |
| Zoning Description | Rur, H |
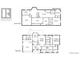
Rooms
| Level | Type | Length | Width | Dimensions |
|---|---|---|---|---|
| Lower Level | Bedroom | 4.94 m | 4.6 m | 4.94 m x 4.6 m |
| Lower Level | Bedroom 2 | 3.87 m | 3.23 m | 3.87 m x 3.23 m |
| Lower Level | Recreational, Games Room | 7.35 m | 4.3 m | 7.35 m x 4.3 m |
| Lower Level | Cold Room | 4.66 m | 0.85 m | 4.66 m x 0.85 m |
| Lower Level | Utility Room | 4.33 m | 3.78 m | 4.33 m x 3.78 m |
| Lower Level | Dining Room | 6.13 m | 2.71 m | 6.13 m x 2.71 m |
| Lower Level | Kitchen | 4.39 m | 2.26 m | 4.39 m x 2.26 m |
| Main Level | Kitchen | 6.13 m | 2.8 m | 6.13 m x 2.8 m |
| Main Level | Laundry Room | 3.41 m | 2.44 m | 3.41 m x 2.44 m |
| Main Level | Dining Room | 2.78 m | 2.87 m | 2.78 m x 2.87 m |
| Main Level | Foyer | 2.78 m | 1.92 m | 2.78 m x 1.92 m |
| Main Level | Primary Bedroom | 4.88 m | 3.69 m | 4.88 m x 3.69 m |
| Main Level | Bathroom | 4.05 m | 2.29 m | 4.05 m x 2.29 m |
| Main Level | Bedroom | 3.81 m | 3.75 m | 3.81 m x 3.75 m |
| Main Level | Bedroom 2 | 3.78 m | 3.51 m | 3.78 m x 3.51 m |
| Main Level | Bedroom 3 | 3.17 m | 3.05 m | 3.17 m x 3.05 m |
| Main Level | Bedroom 4 | 2.5 m | 2.38 m | 2.5 m x 2.38 m |
| Main Level | Living Room | 5.79 m | 4.6 m | 5.79 m x 4.6 m |
Utilities
| Cable | Available |
| Electricity | Installed |
https://www.realtor.ca/real-estate/28997414/453157-grey-road-2-grey-highlands-grey-highlands
Contact Us
Contact us for more information
Susan Moffat
Salesperson
www.susanmoffat.com/
www.facebook.com/susanmoffatc21
14 Main Street West
Markdale, Ontario N0H 1H0
(519) 375-7653
instudiorealty.c21.ca/



































































































