4555 Glen Roy Road South Glengarry, Ontario K0C 1L0
$614,999
Welcome to this charming raised bungalow retreat, perfectly perched on nearly an acre of land the ultimate mix of privacy, space, and comfort. From the moment you arrive, the extended driveway and impressive two-car garage set the stage for a property thats as practical as it is inviting. Stroll up the concrete steps and through the front entrance, where a generous foyer welcomes you into your new country lifestyle. To the right, you'll find a cozy office nook ideal for remote work, reading, or even a hobby space. Step further in and discover the bright living room, anchored by a propane fireplace and sun-filled windows, seamlessly flowing into the dining area. At the heart of the home is the cheerful culinary area, with an eat-in space, featuring an island with quartz counters, abundant cupboards, a propane stove, a wine fridge, and a picturesque view of your backyard oasis. Better yet, theres a walkout to a charming enclosed porch, perfect for morning coffee, evening wine, or simply soaking in the serenity. The main floor also offers two additional bedrooms, including a spacious primary suite with an ensuite, giving you a private retreat at the end of the day. Head downstairs to the fully finished basement, where you'll find a welcoming family-room, two more bedrooms, a full bathroom, and ample storage space ideal for guests, extended family, or creating your dream rec. room. With its private setting, spacious layout, and modern country charm, this property is more than a home, it's a lifestyle. Please allow 24 business hrs irrevocable with all offers. (id:50886)
Property Details
| MLS® Number | X12416573 |
| Property Type | Single Family |
| Community Name | 723 - South Glengarry (Charlottenburgh) Twp |
| Parking Space Total | 12 |
| Structure | Deck |
Building
| Bathroom Total | 3 |
| Bedrooms Above Ground | 3 |
| Bedrooms Below Ground | 2 |
| Bedrooms Total | 5 |
| Amenities | Fireplace(s) |
| Appliances | Water Treatment, Dishwasher, Dryer, Furniture, Washer, Window Coverings |
| Architectural Style | Raised Bungalow |
| Basement Development | Finished |
| Basement Type | N/a (finished) |
| Construction Style Attachment | Detached |
| Cooling Type | Central Air Conditioning |
| Exterior Finish | Brick |
| Fireplace Present | Yes |
| Fireplace Total | 3 |
| Foundation Type | Concrete |
| Heating Fuel | Propane |
| Heating Type | Forced Air |
| Stories Total | 1 |
| Size Interior | 1,500 - 2,000 Ft2 |
| Type | House |
| Utility Water | Drilled Well |
Parking
| Attached Garage | |
| Garage |
Land
| Acreage | No |
| Sewer | Septic System |
| Size Depth | 300 Ft |
| Size Frontage | 137 Ft |
| Size Irregular | 137 X 300 Ft |
| Size Total Text | 137 X 300 Ft |
| Zoning Description | A2 |
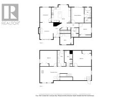
Rooms
| Level | Type | Length | Width | Dimensions |
|---|---|---|---|---|
| Basement | Laundry Room | 4.31 m | 2.02 m | 4.31 m x 2.02 m |
| Basement | Bedroom 4 | 4.59 m | 5.06 m | 4.59 m x 5.06 m |
| Basement | Other | 5.63 m | 4.6 m | 5.63 m x 4.6 m |
| Basement | Bedroom 3 | 4.61 m | 5.19 m | 4.61 m x 5.19 m |
| Basement | Bathroom | 4.31 m | 2.41 m | 4.31 m x 2.41 m |
| Basement | Recreational, Games Room | 5.09 m | 3.94 m | 5.09 m x 3.94 m |
| Main Level | Living Room | 5.06 m | 3.87 m | 5.06 m x 3.87 m |
| Main Level | Dining Room | 3.33 m | 4.38 m | 3.33 m x 4.38 m |
| Main Level | Kitchen | 5.68 m | 5.31 m | 5.68 m x 5.31 m |
| Main Level | Primary Bedroom | 4.57 m | 3.63 m | 4.57 m x 3.63 m |
| Main Level | Bedroom 2 | 3.53 m | 3.35 m | 3.53 m x 3.35 m |
| Main Level | Bathroom | 2.68 m | 2.21 m | 2.68 m x 2.21 m |
| Main Level | Office | 2.95 m | 3.22 m | 2.95 m x 3.22 m |
Contact Us
Contact us for more information
Sophie Goudreau
Salesperson
www.sophiegoudreau.com/
703 Cotton Mill St #109
Cornwall, Ontario K6H 0E7
(613) 938-2121
(613) 938-7729

































































































