46 Consecon Street Prince Edward County, Ontario K0K 3L0
$699,900
Set along one of Wellingtons most desirable streets, this circa 1840s duplex is a distinctive proposition in the neighbourhood that offers a rare blend of versatility, design, and location in Prince Edward County. Anchored by a deep lot that stretches toward a canopy of green with west facing horizon, the opportunity comprises two self-contained residences, each with their own private driveway and entrances, contemporary finishes, and bright, open interiors tailored for modern-country living. Extensively renovated in 2020, the home features new plumbing, updated electrical panels, flooring throughout, appliances, and new hot water tanks. Additional upgrades include a new roof and, furnace and air conditioning, ensuring comfort. The north side of the abode features a stylish two-bedroom, two-bathroom unit, currently operating as a licensed STA, ideal for generating income through short-term. The other, a well-appointed three-bedroom, two-bathroom suite on the south side, lends itself beautifully to full-time living, extended family, or long term rental investment potential. Both units offer well equipped kitchens, clean-lined bathrooms, and seamless flow to expansive covered wrap around porches made for slow mornings and relaxed evenings. Outside, the oversized yard invites gathering and solitude alike, with ample space for recreation or quiet retreat beneath mature trees. Lots of room to expand with some vision and make it an epic backyard oasis. From this prized location, stroll by foot or bike to Wellingtons celebrated eateries, markets, and galleries, while the Millennium Trail and beach remain only minutes away, offering an effortless connection to everything the Countys Lifestyle is loved for. Whether you're envisioning multi-generational living, co-ownership, or a smart income-producing escape, this property represents a rare opportunity to be creative, live beautifully and intentionally, in a place where every path leads to something extraordinary. (id:50886)
Property Details
| MLS® Number | X12518718 |
| Property Type | Multi-family |
| Community Name | Wellington Ward |
| Amenities Near By | Beach, Hospital, Schools, Marina |
| Features | Open Space, Flat Site, Carpet Free |
| Parking Space Total | 4 |
| Structure | Deck, Porch, Shed |
Building
| Bathroom Total | 4 |
| Bedrooms Above Ground | 5 |
| Bedrooms Total | 5 |
| Age | 100+ Years |
| Amenities | Separate Heating Controls, Separate Electricity Meters |
| Appliances | Water Heater, Dishwasher, Dryer, Microwave, Stove, Washer, Refrigerator |
| Basement Development | Unfinished |
| Basement Type | Crawl Space (unfinished) |
| Cooling Type | Central Air Conditioning |
| Exterior Finish | Aluminum Siding |
| Foundation Type | Stone |
| Heating Fuel | Natural Gas |
| Heating Type | Forced Air |
| Stories Total | 2 |
| Size Interior | 2,000 - 2,500 Ft2 |
| Type | Duplex |
| Utility Water | Municipal Water |
Parking
| No Garage |
Land
| Acreage | No |
| Land Amenities | Beach, Hospital, Schools, Marina |
| Sewer | Sanitary Sewer |
| Size Depth | 262 Ft |
| Size Frontage | 63 Ft ,7 In |
| Size Irregular | 63.6 X 262 Ft |
| Size Total Text | 63.6 X 262 Ft |
| Zoning Description | R1 |
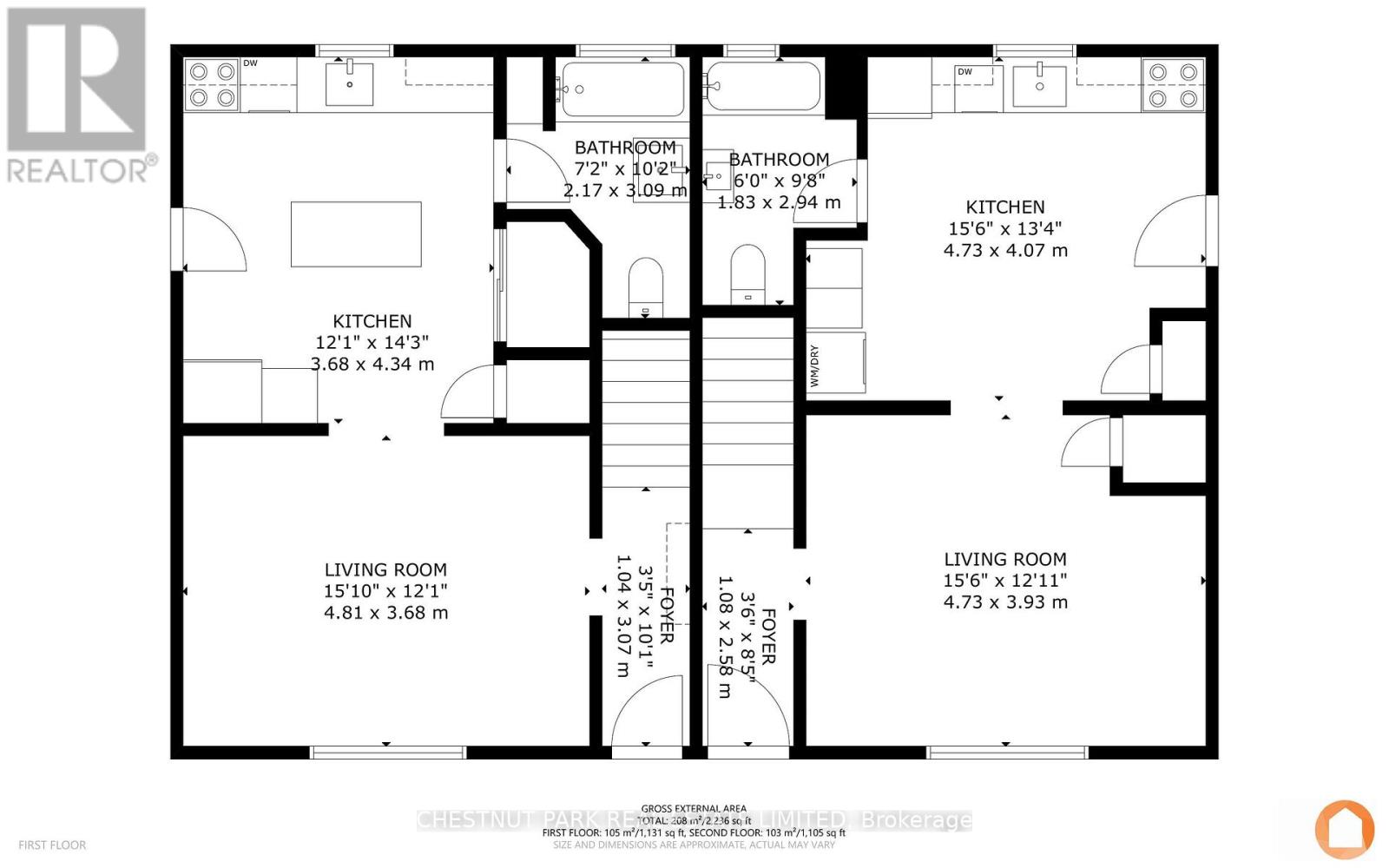
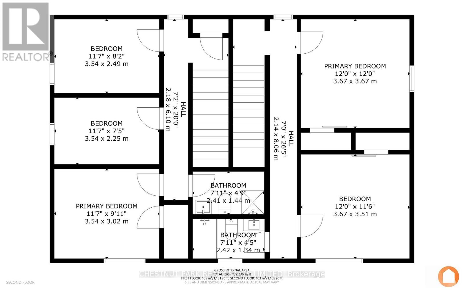
Rooms
| Level | Type | Length | Width | Dimensions |
|---|---|---|---|---|
| Second Level | Primary Bedroom | 3.67 m | 3.67 m | 3.67 m x 3.67 m |
| Second Level | Bedroom | 3.67 m | 3.51 m | 3.67 m x 3.51 m |
| Second Level | Bathroom | 2.42 m | 1.34 m | 2.42 m x 1.34 m |
| Second Level | Primary Bedroom | 3.54 m | 3.02 m | 3.54 m x 3.02 m |
| Second Level | Bedroom | 3.54 m | 2.25 m | 3.54 m x 2.25 m |
| Second Level | Bedroom | 3.54 m | 2.49 m | 3.54 m x 2.49 m |
| Second Level | Bathroom | 2.41 m | 1.44 m | 2.41 m x 1.44 m |
| Main Level | Foyer | 1.04 m | 3.07 m | 1.04 m x 3.07 m |
| Main Level | Kitchen | 4.73 m | 4.07 m | 4.73 m x 4.07 m |
| Main Level | Bathroom | 1.83 m | 2.94 m | 1.83 m x 2.94 m |
| Main Level | Living Room | 4.81 m | 3.68 m | 4.81 m x 3.68 m |
| Main Level | Kitchen | 3.68 m | 4.34 m | 3.68 m x 4.34 m |
| Main Level | Bathroom | 2.17 m | 3.09 m | 2.17 m x 3.09 m |
| Main Level | Foyer | 1.08 m | 3.07 m | 1.08 m x 3.07 m |
| Main Level | Living Room | 4.73 m | 3.93 m | 4.73 m x 3.93 m |
Utilities
| Cable | Available |
| Electricity | Installed |
| Sewer | Installed |
Contact Us
Contact us for more information
Kate Vader
Salesperson
43 Main Street
Picton, Ontario K0K 2T0
(613) 471-1708
(613) 471-1886
Rob Plomer
Salesperson
www.robplomer.com/
43 Main Street
Picton, Ontario K0K 2T0
(613) 471-1708
(613) 471-1886















































































