46 Covert Street Cobourg, Ontario K9A 2L6
$579,000
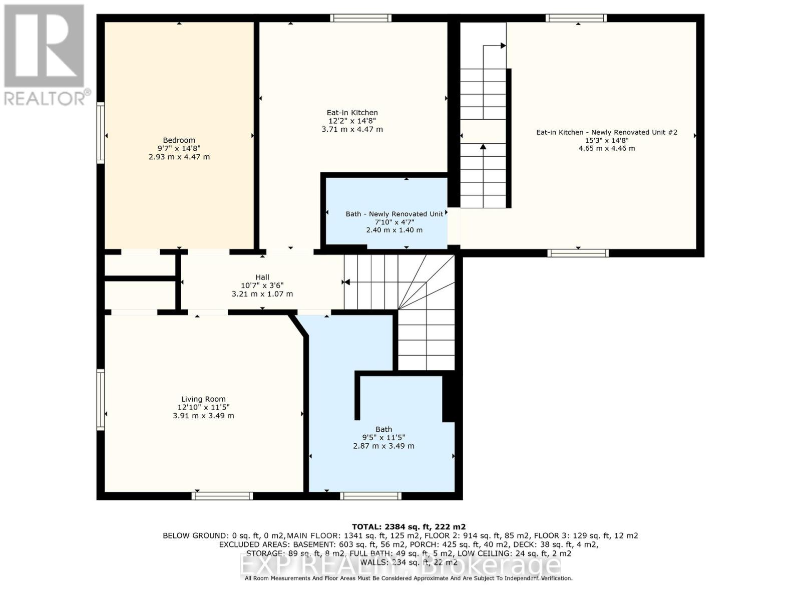
Phenomenal opportunity with a variety of potential and possibility await at 46 Covert Street. Prime location with Exceptionally Deep Lot (Private Parking Lot at Rear), close proximity to the downtown core, a potential to work, live and play, add to your investment portfolio or any combination of. Featuring a single bright commercial space that occupies the main level of the building and TWO SEPERATE -One Bedroom Residential Units above and an oversized private parking lot located at the rear of the building! The freshly painted commercial spaces leave an abundance of potential and possibility with the clean slate that it provides. Waiting for the next owner or tenant to make the space their own and bring Cobourg's next go to business to 46 Covert Street. Highlighting this rare opportunity is the FRESH NEWLY RENOVATED one-bedroom residential unit. The loft style bedroom provides views of beautiful Town Hall, Lake Ontario and the Lighthouse in the distance. Freshly painted, new flooring, appliances, and 3-piece bathroom that is cozy and very well done. Finishing off this listing is the second One-Bedroom Residential Unit complete with living space, kitchen, and full bathroom. Opportunity knocks with 46 Covert Street and the Possibilities it Presents. Steps from the vibrant downtown, Lake Ontario, Cobourg Beach, Boardwalk, World-Class Restaurants, Marina and so much more. Trade in your Status Quo and let your creative mind tackle this amazing property and make it your very own. (id:50886)
Property Details
| MLS® Number | X12314368 | 
| Property Type | Retail | 
| Community Name | Cobourg | 
| Amenities Near By | Public Transit, Recreation | 
Building
| Cooling Type | Partially Air Conditioned | 
| Heating Fuel | Natural Gas | 
| Heating Type | Forced Air | 
| Size Interior | 2,647 Ft2 | 
| Utility Water | Municipal Water | 
Land
| Acreage | No | 
| Land Amenities | Public Transit, Recreation | 
| Size Depth | 146 Ft ,7 In | 
| Size Frontage | 62 Ft ,9 In | 
| Size Irregular | 62.8 X 146.59 Ft | 
| Size Total Text | 62.8 X 146.59 Ft | 
| Zoning Description | Mc | 
https://www.realtor.ca/real-estate/28668493/46-covert-street-cobourg-cobourg
Contact Us
Contact us for more information
							
															Ryan Huffman
							
							
															Salesperson
							
						
www.ryan-huffman.com/
@ryanhuffmanrealestate/
						(866) 530-7737
(647) 849-3180
exprealty.ca/
						
 			 


































































































