47 Robinson Street E Bayham, Ontario N0J 1T0
$159,900
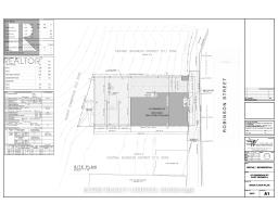
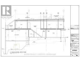
Looking to live where you work? This vacant C-1 lot in downtown Port Burwell presents an exceptional opportunity for building a home and establishing a business in a highly visible area. The large lot overlooks Otter Creek, offering a great view of the Ojibwa submarine, which is a popular attraction at the Museum of Naval History. The seller has drawings for a multi-unit residential/commercial development that are ready to be stamped for a permit. Permitted uses for the lot include a variety of commercial and residential options, such as animal clinics, auction sales facilities, financial institutions, bakeries, hotels, restaurants, retail stores, and residential units, among others. The property has access to municipal water, hydro, and gas. Downtown Port Burwell is a high-traffic area in a growing and desirable beach community. It features a large public beach, marinas, a provincial park, a campground, and a dog park nearby. Seller is willing to do a vendor take-back. (id:50886)
Open House
This property has open houses!
11:00 am
Ends at:1:00 pm
Property Details
| MLS® Number | X12173273 | 
| Property Type | Vacant Land | 
| Community Name | Port Burwell | 
| Amenities Near By | Marina | 
| Easement | Unknown | 
| View Type | River View, View Of Water | 
| Water Front Type | Waterfront | 
Building
| Size Interior | 0 - 699 Ft2 | 
| Utility Water | Municipal Water | 
Parking
| No Garage | 
Land
| Access Type | Year-round Access, Marina Docking, Public Docking | 
| Acreage | No | 
| Land Amenities | Marina | 
| Sewer | Sanitary Sewer | 
| Size Depth | 93 Ft ,9 In | 
| Size Frontage | 44 Ft | 
| Size Irregular | 44 X 93.8 Ft | 
| Size Total Text | 44 X 93.8 Ft | 
| Zoning Description | C-1 | 
Utilities
| Cable | Available | 
| Electricity | Available | 
| Sewer | Available | 
https://www.realtor.ca/real-estate/28366366/47-robinson-street-e-bayham-port-burwell-port-burwell
Contact Us
Contact us for more information
							
															Darryl Boyes
							
							
															Salesperson
							
						
						(519) 637-2300
						
 			 














