491 Ritson Road S Oshawa, Ontario L1H 5K1
$1,872,000
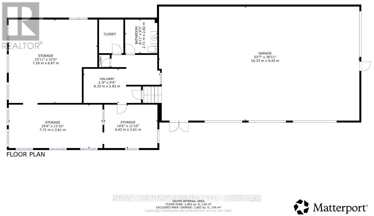
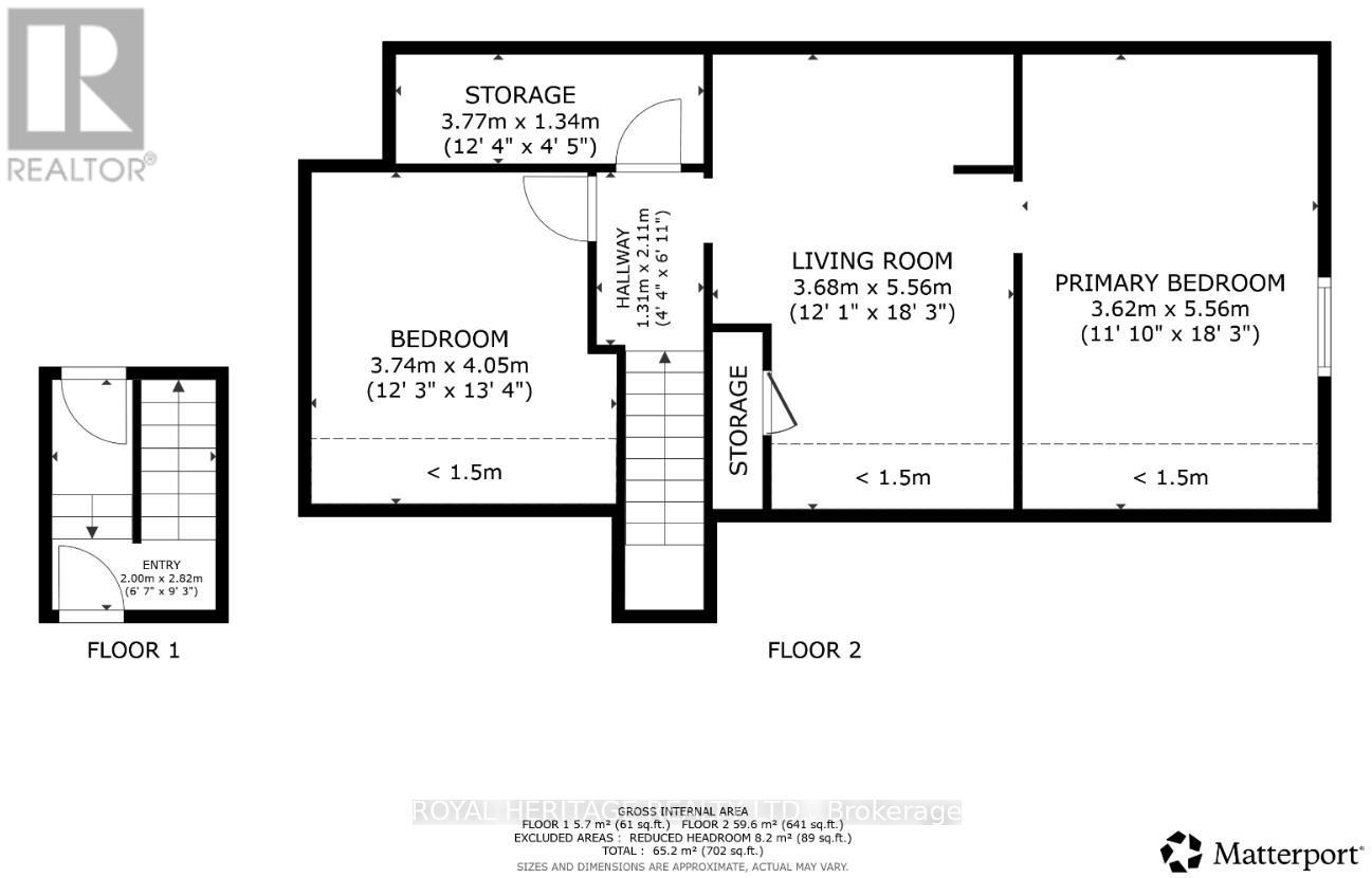
Please see Interactive Virtual Tour Link & Floor Plans 491 Ritson Rd S, a prime commercial property strategically situated on a major throughway in Oshawa. Positioned adjacent to McDonald's Restaurant, Circle K, and other established commercial enterprises. This property was rebuilt in 2021 due to a fire. Everything is almost new. This property offers a total area of 4,991 sq ft. Features include a 1,660 sq ft four-bay automotive space, a finished retail area of 1420 sq ft, and an additional 641 sq ft finished upper level with a separate entrance, providing potential for residential quarters. The lower level encompasses 616 sq ft dedicated to storage. Zoned SPC-A (refer to the attachment for a comprehensive list of permitted uses), the property is currently operating as a tire service center. Exterior storage is available (three sea containers, two 8x20 one 8x40) alongside ample customer parking. Please see Interactive Virtual Tour Link & Floor Plans (id:50886)
Business
| Business Type | Automobile |
| Business Sub Type | Automotive |
Property Details
| MLS® Number | E12452324 |
| Property Type | Retail |
| Community Name | Central |
| Amenities Near By | Highway, Public Transit |
| Features | Irregular Lot Size |
| Parking Space Total | 4 |
Building
| Bathroom Total | 2 |
| Age | 0 To 5 Years |
| Cooling Type | None |
| Heating Fuel | Natural Gas |
| Heating Type | Forced Air |
| Size Exterior | 4991 Sqft |
| Size Interior | 4,991 Ft2 |
| Utility Water | Municipal Water |
Land
| Acreage | No |
| Land Amenities | Highway, Public Transit |
| Size Depth | 135 Ft ,1 In |
| Size Frontage | 40 Ft |
| Size Irregular | Bldg=40 X 135.13 Ft ; 35.03x81.14x100.09x40.04x135.13x121.14 |
| Size Total Text | Bldg=40 X 135.13 Ft ; 35.03x81.14x100.09x40.04x135.13x121.14 |
| Zoning Description | Spc-a |
https://www.realtor.ca/real-estate/28967099/491-ritson-road-s-oshawa-central-central
Contact Us
Contact us for more information
Jason Abbott
Salesperson
www.jasonabbottrealestate.com/
www.facebook.com/jasonabbotthomes
342 King Street W Unit 201
Oshawa, Ontario L1J 2J9
(905) 723-4800
(905) 239-4807
www.royalheritagerealty.com/
Jordyn Fay
Salesperson
342 King Street W Unit 201
Oshawa, Ontario L1J 2J9
(905) 723-4800
(905) 239-4807
www.royalheritagerealty.com/

























