5 - 12 Wesleyan Street Halton Hills, Ontario L7G 2E1
$2,300 Monthly
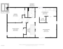
Apartment in Downtown Georgetown - Ready for Immediate Occupancy. Located in the heart of Downtown Georgetown, this spacious 2nd-floor two bedroom / 1 bath apartment is accessed through a ground floor shared hallway. Open concept living and dining area with a generous kitchen. The kitchen is equipped with a fridge and stove. Coin-operated laundry is available on-site for your convenience. This non-smoking building consists of multiple residential units and is not suitable for pets. Ideal for a couple or small family, the unit includes one designated parking spot. Electricity (hydro) is added as a flat fee of $100.00 per month in addition to the base rent. Additional parking may be available in the public lot on Wesleyan street through a paid parking pass from the Town of Halton Hills for the Tenants to purchase/arrange at their own expense. Enjoy the convenience of being just a short walk to Main Street's shops, restaurants, and the local Downtown events and farmers' market. A nearby GO Bus stop adds to the ease of commuting (id:50886)
Property Details
| MLS® Number | W12383421 | 
| Property Type | Multi-family | 
| Community Name | Georgetown | 
| Amenities Near By | Park, Place Of Worship, Public Transit, Schools | 
| Features | Flat Site, Level, Carpet Free, Laundry- Coin Operated | 
| Parking Space Total | 1 | 
| Structure | Patio(s) | 
| View Type | View | 
Building
| Bathroom Total | 1 | 
| Bedrooms Above Ground | 2 | 
| Bedrooms Total | 2 | 
| Appliances | Hood Fan, Stove, Refrigerator | 
| Basement Type | None | 
| Exterior Finish | Brick, Stucco | 
| Fire Protection | Monitored Alarm, Smoke Detectors | 
| Flooring Type | Laminate, Tile | 
| Foundation Type | Unknown | 
| Heating Fuel | Natural Gas | 
| Heating Type | Forced Air | 
| Size Interior | 700 - 1,100 Ft2 | 
| Type | Other | 
| Utility Water | Municipal Water | 
Parking
| No Garage | 
Land
| Acreage | No | 
| Land Amenities | Park, Place Of Worship, Public Transit, Schools | 
| Sewer | Sanitary Sewer | 
| Size Irregular | 66 X 132 Acre | 
| Size Total Text | 66 X 132 Acre | 
Rooms
| Level | Type | Length | Width | Dimensions | 
|---|---|---|---|---|
| Second Level | Living Room | 5.26 m | 5.21 m | 5.26 m x 5.21 m | 
| Second Level | Dining Room | 5.26 m | 5.21 m | 5.26 m x 5.21 m | 
| Second Level | Kitchen | 5.26 m | 2.41 m | 5.26 m x 2.41 m | 
| Second Level | Bathroom | 2.41 m | 1.68 m | 2.41 m x 1.68 m | 
| Second Level | Primary Bedroom | 4.65 m | 3.61 m | 4.65 m x 3.61 m | 
| Second Level | Bedroom 2 | 4.27 m | 3.63 m | 4.27 m x 3.63 m | 
Utilities
| Cable | Available | 
| Electricity | Installed | 
| Sewer | Installed | 
https://www.realtor.ca/real-estate/28819363/5-12-wesleyan-street-halton-hills-georgetown-georgetown
Contact Us
Contact us for more information
							
															Denise Dilbey
							
							
															Broker
							
						
(416) 919-9802
www.ddilbey.com/
www.facebook.com/denisedilbeyrealtor
twitter.com/ddilbey
www.linkedin.com/in/link2realestate
324 Guelph Street Suite 12
Georgetown, Ontario L7G 4B5
						(905) 877-8262
						
 
 			 






























































