502 Butter Road W Ancaster, Ontario L9G 3L1
$2,900,000
A rare opportunity to own prime farmland in one of South Ancaster’s most desirable and productive agricultural regions. Currently farmed for wheat and hay, this expansive corner lot offers flat, workable land ideal for ongoing cash crop operations or future agri-investment potential. Surrounded by established farm-use properties, the area offers both peaceful rural character and unmatched convenience. Located just ±8 km south of Ancaster town centre, ±6 km west of Hamilton Airport, and minutes from Highway 6, Highway 403, and Trinity Road South, the location ensures quick access to major transportation routes. Enjoy the beauty of the countryside with proximity to all essential amenities, just a short drive to Walmart, Longo’s, Canadian Tire, Starbucks, and more, nestled between Wilson Street W and Garner Road W. Set within the protected Ancaster green buffer, the property also features a rectangular building envelope with full southern exposure and remarkable privacy. Whether you’re looking to grow your operation or secure a long-term land asset in a stable and sought-after rural community, this property delivers the best of both worlds: wide-open space and strategic location. Being Sold as-is (id:50886)
Property Details
| MLS® Number | 40746555 |
| Property Type | Agriculture |
| Amenities Near By | Airport, Golf Nearby, Shopping |
| Community Features | School Bus |
| Crop | Grains |
| Farm Type | Animal, Cash Crop |
| Features | Conservation/green Belt, Tile Drained |
| Live Stock Type | Beef |
| Storage Type | Storage |
| Structure | Barn |
Building
| Bathroom Total | 2 |
| Bedrooms Above Ground | 5 |
| Bedrooms Total | 5 |
| Appliances | Stove |
| Basement Development | Unfinished |
| Basement Type | Full (unfinished) |
| Constructed Date | 1850 |
| Cooling Type | Central Air Conditioning |
| Exterior Finish | Stone, Shingles |
| Fireplace Present | Yes |
| Fireplace Total | 2 |
| Foundation Type | Stone |
| Half Bath Total | 1 |
| Heating Fuel | Oil |
| Heating Type | Forced Air, Heat Pump |
| Size Interior | 2,581 Ft2 |
| Utility Water | Cistern, Drilled Well, Dug Well |
Land
| Access Type | Road Access |
| Acreage | Yes |
| Land Amenities | Airport, Golf Nearby, Shopping |
| Sewer | Septic System |
| Size Irregular | 99 |
| Size Total | 99 Ac|50 - 100 Acres |
| Size Total Text | 99 Ac|50 - 100 Acres |
| Soil Type | Loam |
| Zoning Description | A1, P7 |
Rooms
| Level | Type | Length | Width | Dimensions |
|---|---|---|---|---|
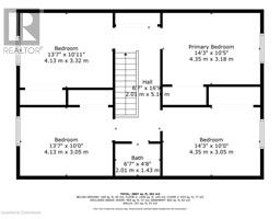
| Second Level | 2pc Bathroom | 6'7'' x 4'8'' | ||
| Second Level | Bedroom | 14'3'' x 10'0'' | ||
| Second Level | Bedroom | 13'7'' x 10'0'' | ||
| Second Level | Bedroom | 14'3'' x 10'5'' | ||
| Second Level | Bedroom | 13'7'' x 10'11'' | ||
| Basement | Other | Measurements not available | ||
| Main Level | Bedroom | 14'9'' x 17'7'' | ||
| Main Level | Dining Room | 13'6'' x 14'7'' | ||
| Main Level | Family Room | 18'2'' x 28'9'' | ||
| Main Level | Mud Room | Measurements not available | ||
| Main Level | Kitchen | 13'6'' x 12'6'' | ||
| Main Level | 3pc Bathroom | Measurements not available |
Utilities
| Electricity | Available |
https://www.realtor.ca/real-estate/28671237/502-butter-road-w-ancaster
Contact Us
Contact us for more information
Mayra Darquea
Salesperson
(289) 288-0550
3185 Harvester Rd, Unit #1
Burlington, Ontario L7N 3N8
(905) 335-8808
(289) 288-0550













































































