502 Gould Street South Bruce Peninsula, Ontario N0H 2T0
$524,900
Welcome to this tastefully and charmingly updated 1.5 storey home, nestled on a lovely lot in the heart of Wiarton. Offering comfort, style, and convenience, this delightful property is just steps from all the amenities this vibrant community has to offer shops, schools, parks, and the beautiful waterfront. Inside, you'll find a warm and inviting layout featuring 3 spacious bedrooms and 2 full bathrooms. The beautiful kitchen is thoughtfully designed, blending modern finishes with timeless character, and flows seamlessly into the dining and living areas perfect for family life or entertaining guests. A cozy sitting room adds an extra touch of charm and versatility, ideal for relaxing with a good book or enjoying your morning coffee. With tasteful updates throughout and a well-maintained lot offering outdoor space to enjoy, this home is a true gem in a sought-after location. Whether you're a first-time buyer, a growing family, or looking to downsize in comfort, this Wiarton beauty is ready to welcome you home. (id:50886)
Property Details
| MLS® Number | X12189120 |
| Property Type | Single Family |
| Community Name | South Bruce Peninsula |
| Amenities Near By | Hospital, Park, Place Of Worship, Schools |
| Features | Flat Site |
| Parking Space Total | 3 |
| Structure | Porch, Deck, Shed |
Building
| Bathroom Total | 2 |
| Bedrooms Above Ground | 3 |
| Bedrooms Total | 3 |
| Appliances | Water Meter, Dishwasher, Dryer, Stove, Washer, Window Coverings, Refrigerator |
| Basement Features | Walk Out |
| Basement Type | Partial, N/a |
| Construction Style Attachment | Detached |
| Cooling Type | None |
| Exterior Finish | Concrete |
| Foundation Type | Stone |
| Heating Fuel | Natural Gas |
| Heating Type | Forced Air |
| Stories Total | 2 |
| Size Interior | 1,500 - 2,000 Ft2 |
| Type | House |
| Utility Water | Municipal Water |
Parking
| Detached Garage | |
| Garage |
Land
| Acreage | No |
| Land Amenities | Hospital, Park, Place Of Worship, Schools |
| Sewer | Sanitary Sewer |
| Size Depth | 198 Ft |
| Size Frontage | 56 Ft ,2 In |
| Size Irregular | 56.2 X 198 Ft |
| Size Total Text | 56.2 X 198 Ft |
| Zoning Description | R3 |
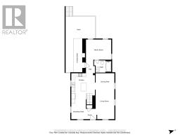
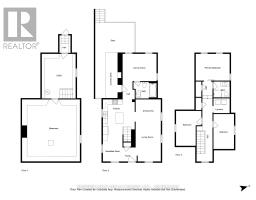
Rooms
| Level | Type | Length | Width | Dimensions |
|---|---|---|---|---|
| Second Level | Laundry Room | 1.93 m | 1.78 m | 1.93 m x 1.78 m |
| Second Level | Bathroom | 1.96 m | 1.83 m | 1.96 m x 1.83 m |
| Second Level | Primary Bedroom | 4.3 m | 3.2 m | 4.3 m x 3.2 m |
| Second Level | Bedroom 2 | 4.22 m | 2.41 m | 4.22 m x 2.41 m |
| Second Level | Bedroom 3 | 4.2 m | 2.9 m | 4.2 m x 2.9 m |
| Main Level | Sitting Room | 3.93 m | 3.28 m | 3.93 m x 3.28 m |
| Main Level | Bathroom | 2.7 m | 1.8 m | 2.7 m x 1.8 m |
| Main Level | Foyer | 2.34 m | 1.13 m | 2.34 m x 1.13 m |
| Main Level | Kitchen | 4.27 m | 3.82 m | 4.27 m x 3.82 m |
| Main Level | Den | 3.32 m | 2.52 m | 3.32 m x 2.52 m |
| Main Level | Dining Room | 3.15 m | 2.98 m | 3.15 m x 2.98 m |
| Main Level | Living Room | 4.48 m | 2.98 m | 4.48 m x 2.98 m |
| Main Level | Foyer | 1.65 m | 1.47 m | 1.65 m x 1.47 m |
Utilities
| Electricity | Installed |
| Sewer | Installed |
Contact Us
Contact us for more information
Mike Revell
Broker
www.revellrealestateltd.com/
www.facebook.com/revellrealestateltd
twitter.com/wiartonhomes
ca.linkedin.com/pub/mike-revell/30/1b1/3b0
582 Berford St
Wiarton, Ontario N0H 2T0
(519) 534-2370
www.remax.ca/





























































































