503 - 75 Emmett Avenue Toronto, Ontario M6M 5A7
$664,900Maintenance, Common Area Maintenance, Insurance, Parking, Water
$1,095.02 Monthly
Maintenance, Common Area Maintenance, Insurance, Parking, Water
$1,095.02 MonthlyWelcome to The Winston House! Ideally located with TTC at your doorstep and just minutes from highways, top schools, parks, and everyday amenities, this residence combines comfort with unbeatable convenience. Step into this bright and spacious 3+1 bedroom suite, filled with natural light from expansive windows. The primary bedroom features a walk-in closet and a 4-piece en-suite, while the additional bedrooms and flexible living areas offer plenty of room for a growing family or the perfect canvas to renovate to your style. Enjoy a wealth of amenities including a gym, sauna, library, tennis courts, and more. Then, unwind with spectacular south-facing views of the city skyline, CN Tower, Eglinton Flats, and surrounding green spaces all from the comfort of your own home. Don't miss this rare chance to make The Winston House yours! (id:50886)
Property Details
| MLS® Number | W12206262 |
| Property Type | Single Family |
| Community Name | Mount Dennis |
| Amenities Near By | Golf Nearby, Hospital, Public Transit |
| Community Features | Pets Not Allowed |
| Features | Ravine, Balcony |
| Parking Space Total | 1 |
Building
| Bathroom Total | 2 |
| Bedrooms Above Ground | 3 |
| Bedrooms Below Ground | 1 |
| Bedrooms Total | 4 |
| Amenities | Storage - Locker |
| Appliances | Dishwasher, Dryer, Stove, Washer, Window Coverings, Refrigerator |
| Basement Type | None |
| Cooling Type | Central Air Conditioning |
| Exterior Finish | Brick |
| Heating Fuel | Natural Gas |
| Heating Type | Forced Air |
| Size Interior | 1,600 - 1,799 Ft2 |
| Type | Apartment |
Parking
| Underground | |
| Garage |
Land
| Acreage | No |
| Land Amenities | Golf Nearby, Hospital, Public Transit |
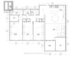
Rooms
| Level | Type | Length | Width | Dimensions |
|---|---|---|---|---|
| Flat | Living Room | 6.85 m | 3.35 m | 6.85 m x 3.35 m |
| Flat | Dining Room | 3.7 m | 2.42 m | 3.7 m x 2.42 m |
| Flat | Kitchen | 4.38 m | 3 m | 4.38 m x 3 m |
| Flat | Primary Bedroom | 4.85 m | 3.4 m | 4.85 m x 3.4 m |
| Flat | Bedroom 2 | 5 m | 2.85 m | 5 m x 2.85 m |
| Flat | Bedroom 3 | 3.75 m | 2.75 m | 3.75 m x 2.75 m |
| Flat | Den | 3.75 m | 2.75 m | 3.75 m x 2.75 m |
| Flat | Laundry Room | 2.42 m | 4.92 m | 2.42 m x 4.92 m |
https://www.realtor.ca/real-estate/28437660/503-75-emmett-avenue-toronto-mount-dennis-mount-dennis
Contact Us
Contact us for more information
Vincenzo Cicero
Salesperson
(416) 826-5511
www.realtyto.com/
2 Sheppard Avenue East, 20th Floor
Toronto, Ontario M2N 5Y7
(647) 494-8012
(289) 475-5524
www.internationalrealtyfirm.com/



































