5314-5316 Highway 38 Frontenac, Ontario K0H 1V0

3 Bedroom 1 Bathroom 700 - 1,100 ft2
Bungalow Central Air Conditioning Forced Air

$469,900

Attention first time buyers or retirees! This 3 bedroom bungalow has been lovingly updated & maintained by the current owners & it's time for a new family to make memories here. Featuring open concept layout, newer flooring & paint throughout, updated kitchen & bath, finished basement (2024/25) with rough in for another bathroom, propane furnace (2019) & hot water tank (2024), gas BBQ hookup, newer front & back decking (2020), newer windows & doors on the main level, metal roof, good water, oversized double car garage plus outbuildings, garden boxes (2022/23). Situated on a double lot in Hartington, with severance potential - this is a great opportunity! (id:50886)

Open House

This property has open houses!

November
9
Sunday
Starts at:

2:00 pm

Ends at:

4:00 pm

Property Details

MLS® Number X12480383
Property Type Single Family
Community Name 47 - Frontenac South
Equipment Type Propane Tank
Parking Space Total 6
Rental Equipment Type Propane Tank
Structure Deck

Building

Bathroom Total 1
Bedrooms Above Ground 3
Bedrooms Total 3
Age 51 To 99 Years
Appliances Water Heater, Stove, Refrigerator
Architectural Style Bungalow
Basement Type Full
Construction Style Attachment Detached
Cooling Type Central Air Conditioning
Exterior Finish Vinyl Siding
Foundation Type Block
Heating Fuel Propane
Heating Type Forced Air
Stories Total 1
Size Interior 700 - 1,100 Ft2
Type House

Parking

Attached Garage
Garage

Land

Acreage No
Sewer Septic System
Size Depth 152 Ft ,10 In
Size Frontage 152 Ft ,10 In
Size Irregular 152.9 X 152.9 Ft
Size Total Text 152.9 X 152.9 Ft
Zoning Description Ru

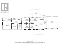
Rooms

Level Type Dimensions
Basement Den 3.4 m x 3.21 m
Basement Family Room 5.14 m x 6.79 m
Basement Laundry Room 3.2 m x 0.99 m
Basement Other 2.51 m x 3.21 m
Basement Utility Room 2.47 m x 2.27 m
Main Level Living Room 3.74 m x 6.99 m
Main Level Kitchen 3.31 m x 2.57 m
Main Level Dining Room 2.2 m x 4.42 m
Main Level Bathroom 1.5 m x 2.42 m
Main Level Bedroom 2.48 m x 3.42 m
Main Level Bedroom 3.09 m x 2.42 m
Main Level Primary Bedroom 3.22 m x 3.42 m

https://www.realtor.ca/real-estate/29028465/5314-5316-highway-38-frontenac-frontenac-south-47-frontenac-south

Contact Us

Contact us for more information

Generating Captcha

Hilary Mckenna
Broker of Record

(613) 532-5151
www.hometownrealtykingston.com/

Hometown Realty Kingston Corp., Brokerage
649 Justus Dr
Kingston, Ontario K7M 4H5

(613) 389-2111
www.hometownrealtykingston.com/

Your Favourites

 

No Favourites Found