595 Elmbrook Road Prince Edward County, Ontario K0K 2T0
$659,000
Welcome to peace and quiet! This 70 acre parcel of land has a 4 bedroom 2300 sq. ft century home. There is a large old barn and a 90 ft x 40 ft quonset hut! The house was built in 1900 and features 4 large bedrooms and 4 pc bath on the second floor. The main floor features plenty of space which includes a sunroom, Kitchen with breakfast nook, main floor laundry, large dining room, Family room and a living room. There are two staircases to the 2nd level. The roof was done in 2022 with all new boards and new shingles. The current owner did have horses so the fields do have electrical fencing but property can be used for many different uses! Looking for a property to expand and play with privacy! This has it all! Located 10 minutes to Picton and 15 minutes to 401. (id:50886)
Property Details
| MLS® Number | X12582234 |
| Property Type | Single Family |
| Community Name | Sophiasburg Ward |
| Amenities Near By | Golf Nearby, Hospital, Marina, Schools |
| Community Features | Community Centre |
| Features | Wooded Area, Flat Site |
| Parking Space Total | 10 |
| Structure | Deck |
Building
| Bathroom Total | 1 |
| Bedrooms Above Ground | 4 |
| Bedrooms Total | 4 |
| Age | 100+ Years |
| Appliances | Dishwasher, Dryer, Water Heater, Stove, Washer, Window Coverings, Refrigerator |
| Basement Development | Unfinished |
| Basement Type | N/a (unfinished) |
| Construction Style Attachment | Detached |
| Cooling Type | Window Air Conditioner |
| Exterior Finish | Vinyl Siding |
| Foundation Type | Stone |
| Stories Total | 2 |
| Size Interior | 2,000 - 2,500 Ft2 |
| Type | House |
| Utility Water | Dug Well |
Parking
| No Garage |
Land
| Acreage | Yes |
| Land Amenities | Golf Nearby, Hospital, Marina, Schools |
| Sewer | Septic System |
| Size Depth | 2374 Ft |
| Size Frontage | 1254 Ft |
| Size Irregular | 1254 X 2374 Ft |
| Size Total Text | 1254 X 2374 Ft|50 - 100 Acres |
| Zoning Description | Ru-2 / Ep |
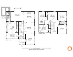
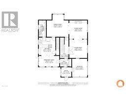
Rooms
| Level | Type | Length | Width | Dimensions |
|---|---|---|---|---|
| Second Level | Bedroom | 3.41 m | 3.49 m | 3.41 m x 3.49 m |
| Second Level | Bathroom | 3.55 m | 2.68 m | 3.55 m x 2.68 m |
| Second Level | Primary Bedroom | 3.39 m | 3.68 m | 3.39 m x 3.68 m |
| Second Level | Bedroom | 3.07 m | 3.01 m | 3.07 m x 3.01 m |
| Second Level | Bedroom | 3.74 m | 3.01 m | 3.74 m x 3.01 m |
| Main Level | Kitchen | 3.67 m | 3.91 m | 3.67 m x 3.91 m |
| Main Level | Eating Area | 4.53 m | 2.35 m | 4.53 m x 2.35 m |
| Main Level | Living Room | 3.96 m | 4.1 m | 3.96 m x 4.1 m |
| Main Level | Family Room | 3.96 m | 4.1 m | 3.96 m x 4.1 m |
| Main Level | Dining Room | 4.82 m | 4.95 m | 4.82 m x 4.95 m |
| Main Level | Sunroom | 3.34 m | 4 m | 3.34 m x 4 m |
| Main Level | Laundry Room | 1.59 m | 3.65 m | 1.59 m x 3.65 m |
Utilities
| Electricity | Installed |
| Electricity Connected | Connected |
Contact Us
Contact us for more information
Lanna Teresa Martin
Salesperson
(613) 503-1363
(613) 476-5900
(613) 476-2225
Colin Henden
Salesperson
(613) 476-5900
(613) 476-2225





















































































